Mer info

Arkitektritad familjevilla på toppläge i Djursholm

Emblavägen 12A – Djursholm

Boarea | Biarea 189 kvm | 5 kvm Rum 5 rok
Pris Såld Tomtarea 1 471 kvm

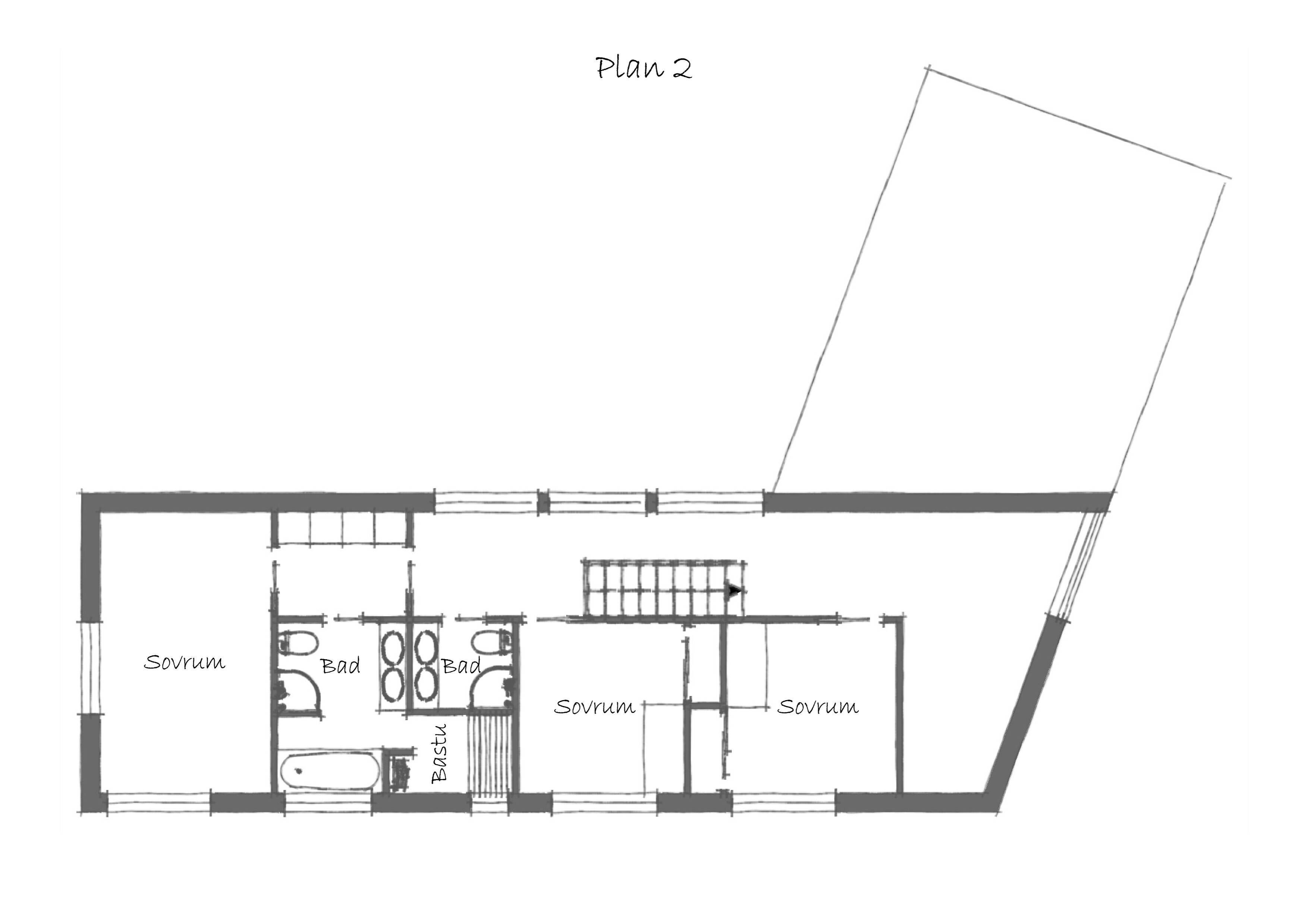
På en av Djursholms mest eftertraktade gator ligger denna moderna familjevilla, ritad av den uppmärksammade arkitektduon Franson/Wreland. Det ljusa huset har stora panoramafönster från golv till tak. Inbyggda högtalare i badrum och tvättstuga, slipat betonggolv samt golvvärme. Kök från exklusiva Mobalpa i Imperial Red och vitvaror från Miele, extra stor spishäll på köksö med fläkt. Entréplanet är inrett med stora öppna ytor mellan kök och vardagsrum. Badrum med dusch och mindre sovrum. Övre plan nås via designad trapp och här finns tre sovrum, varav ett större, samt två badrum. Hela huset är väldigt stilrent med vit putsad fasad, målad plåt i ljusgrått och stora fönsterpartier. Trädgården nås via elstyrd grind och kamera. Gräsmattan sköts av gräsklippar-robot och automatisk bevattning. Snygga planteringar och stenlagd uteplats med insynsskydd och terassvärme. Sol- och vindstyrd markis i snyggt grått. Stor gräsyta mot baksidan av huset samt friggebod. Fiber 100MB, Triple-play.

Bilder

Fakta

Fakta

Upplåtelseform
Friköpt - Småhus
Byggnadsår
2008
Byggnadstyp
Tvåplanshus
Uppvärmning
Luft/vatten värmepump
Energiprestanda
99 kWh/Kvm och år
Fönster
Argonfyllda glas
Fasad
Puts
Tak
Falsad plåt
Bjälklag
Armerad betong
Stomme
Lättbetong
Plåtarbete
Lackerad plåt
Grund
Gjuten betongplatta
Vatten och avlopp
Kommunalt vatten året om.. Kommunalt avlopp.
Ventilation
AC övre plan och nedre plan
Tv- internetutbud
Fiber 100 Mb + Tripple play datanät
Taxeringsvärde byggnad
4 604 000 kr
Taxeringsvärde tomt
7 200 000 kr
Taxeringsvärde totalt
11 804 000 kr

Driftskostnad

Värme
2 000 kr/ mån
El
500 kr/ mån
Vatten/Avlopp
500 kr/ mån
Renhållning
375 kr/ mån
Försäkring
875 kr/ mån
Driftskostnader totalt
4 250 kr/ mån

Dokument

Dokument

Planritning

Vi hjälper dig att finna det du söker

Få de senaste objekten som matchar dina önskemål i din mailkorg innan de når marknaden. Anmäl dig till wredes spekulantregister och ange din sökning. Vi matchar alla objekt.

Att sälja underhand

En del av våra kunder föredrar en försäljning där man inte visar upp sitt hem helt publikt. Här ses ett urval av våra hem som Wrede säljer underhand. De visas endast på vår hemsida med begränsad information och syns inte på Hemnet. Vi har även flertalet villor, våningar samt lant-& sjöställen till salu som inte visas här. Söker ni ett exceptionellt hem utöver det vanliga? Vänligen kontakta oss på info@wrede.se så berättar vi mer om vårt underhandsutbud.

SPEKULANTREGISTER

Om du vill göra en intresseanmälan för olika typer av objekt (våningar, villor, lant & sjöställen, skåne & gotland) måste du anmäla dig för varje objektstyp.

Wredes nyhetsbrev

Varje vecka får du ta del av Wredes senaste objekt som ännu inte nått den öppna marknaden. Här läser du om de mest extravaganta hemmen, blir uppdaterad om de våra underhandsförsäljningar och får ta del av inbjudningar till kommande exklusiva event hos Wrede.
Söker du ny bostad? Anmäl dig till Wredes spekulantregister