Mer info

Nyskapad oas på solig platå

Oxövägen 3 – Oxölandet Värmdö

Boarea | Biarea 202 kvm | 40 kvm Rum 7 rok
Pris 14 000 000 kr / bud Tomtarea 2 853 kvm

På denna soliga och natursköna hylla har en oasliknande plats skapats med trivsamma och sociala ytor såväl inne som ute. Platsen bjuder på sol från morgon till sen kväll och allt är noggrant genomtänkt och väldesignat av arkitekter med prägling av en mycket god och omsorgsfullt utvald kvalité. Vi befinner oss i ett idylliskt vackert och naturskönt område med fjärdar och vikar till Saltsjöns vatten. På badrocksavstånd finns flera badstränder och med egna båten tar vi oss ut från Prästfjärden och vidare mot Saltaröström, Vindöström med närhet till Sandhamn, Bullandö och många fler trevliga utflyktsmål. Till fastigheten hör en båtplats vid gemensam brygga för närliggande fastigheter. Huvudbyggnaden i 1,5 plan om 202 kvm stod klar 2022 och är inredd med ett stort exklusivt kök i anslutning till vardagsrummet och den generösa terrassen i gjuten betong. Villan är i permanentstandard och byggd i hög kvalité, det är 4,7 meter i tak som högst och i sovrumsavdelningen 2,8 meter, vattenburen golvvärme under det fint polerade betonggolvet samt platsbyggd inredning och en maskinpark av kvalitétsmärken. Fasaden är av obehandlad lärkträ, fönstren är 3-glas med alminiumram och taket är valsad plåt. Det finns två helkaklade badrum, 5 sovrum varav en masteravdelning samt ytterligare ett allrum. En trappa upp möts vi av ett stort härligt sov-/allrum samt rikligt med förvaring. Värmesystemet är en fin Nibe-anläggning i kombination med ett FTX-ventilationssystem. I den vackra stenlagda trädgården med belysning och diverse rabatter, blommor och växter står ett lika vackert men mindre pool-/gästhus i samma stil om 40 kvm byggd 2023. I anslutning har en spektakulär uppvärmd pool anlagts helt i rostfritt stål. Poolen är 7,5x3 meter och bjuder på ljusspel i olika färger samt ett bra poolskydd. Pool-/gästhuset är isolerat och inrett med barkök och badrum med WC och dusch samt ger plats för både gäster och relax. I anslutning till byggnaden finns förråd, cykelrum samt maskinrum för poolen. Läs mer under beskrivning...

Bilder

Beskrivning

Beskrivning

Köket är påkostat och stilrent i rostfritt stål från Purus och platsbyggd inredning från Lucks by Robo med gott om förvaringsmöjligheter. Stänkskydd på vägg bakom spis i handgjord Zellige kakel. Blandare i rostfritt stål med utdragspip. Belysningsskenor med dimmbara spotlights i tak. Köket är utrustat med kyl, frys, diskmaskin, fristående spis med dubbla ugnar från Smeg. Fläkten är en Fjärråskåpa och vinkylen är från Liebherr. Köksön erbjuder förutom förvaringsmöjligheter flera sittplatser och är en trevlig yta för social samvaro.

Badrum/Tvättstuga i anslutningen till köket är delvis kaklat och på golvet ligger Ekebergsmarmor. Handfatet är tillverkat i Ekebergsmarmor och kommoden i ek är från från Sjöö snickeri med en inbyggd blandare i vägg. Duschset i krom från Tapwell. Inbyggd Wc-stol från Gustavsberg. Tvättdel med tvättmaskin och torktumlare från Bosch Home Professional. Ovan ligger en bänkskiva i trä och det finns förvaringshylla med klädstång, linneskåp samt städskåp.

Badrummet i Masteravdelningen har ett generöst fönsterparti mot skogen. Dubbla handfat tillverkat i Svensk Ekebergsmarmor samt kommod i ek från Sjöö snickeri. Inbyggd blandare till tvättställ i vägg. Stort badkar med inbyggd blandare från Tapwell. Golv i Ekebergsmarmor och väggar delvis kaklade. Inbyggd Wc-stol från Gustavsberg. Stor spegel med infälld belysning i vägg vid spegel samt spotlights i tak.

Till övervåningen leder en nätt trappa av trä med räcke. Här möts vi av ett stort rum med 2,4 meter i nockhöjd men lägre under snedtal. Golvytan på detta plan inkl. förråd är ca 70 kvm. Golvet är klätt av en heltäckningsmatta från Kjellbergs och det är ett stort fönster på kortsidan. Detta våningsplan har även två stora rum för förvaring där FTX aggregatet är placerat samt ett rum med klinker för NIBEs inomhusdel med varmvattenberedare. 

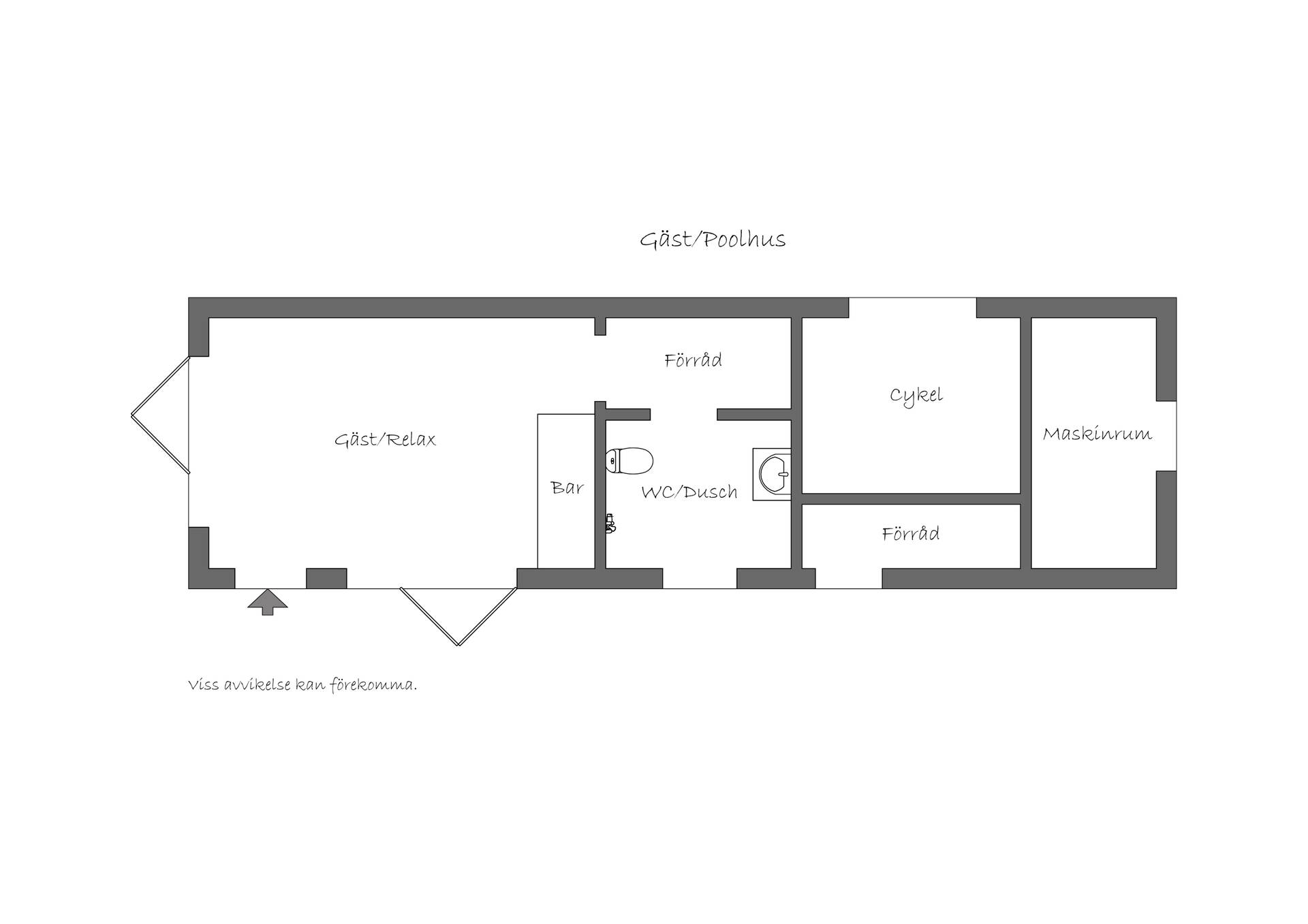
Gäst-/poolhuset har en byggyta om totalt 40 kvm. Gäst-/relaxrummet samt badrummet intill är tillsammans 20 kvm invändigt. Här är ett golv av sten lagt, det finns en luftvärmepump för uppvärmning och det är stora vikbara isolerglasfönster att öppna mot poolen med svart alminiumram. I övriga utrymmen finns ett rum för poolmaskiner, en stor poolvärmare från Gullberg Jansson, ett automatiskt doseringssystem från Pahlen, ett reningsverk samt UV-lampa. Elcentral för maskinerna samt till det elektriska poolskyddet. Central för LED belysning i poolen. Överfyllnadsskydd samt Automatisk vattenpåfyllnings funktion. Cykelparkeringsutrymmet är under tak där utvändig del till poolvärmare samt luftvärmedel är placerat. Det är förberett för Elbilsladdare. 

Säkerhet är kodlås till entrédörr och larmsystem med invändiga och utvändiga kameror från Verisure. 

Terrassen till huvudbyggnaden är platsgjuten i betong. Dubbla elektriska markiser och det finns eluttag och plats för grill. 
I trädgården har ett bevattningssystem anlagts och det är fin dekorativ utebelysning runt om.

Området är mycket vackert och idylliskt med bl a Värmdös vackra Kyrka och församlingslokaler intill. Närmaste granne är  "Kyrkskolan" en moderna byskola med årskurserna (F-6). Den är mycket omtyckt och barnen både lär sig simma och om vintern åka skridskor på fjärden. Det är riktigt med natur att ströva fritt i och några kilometer bort ligger Siggesta Gård med lokalodlade varor och kött från lokalt slakteri. Här finns restaurang, hästar, djur och aktiviteter för barnen. Det finns också seglarskolor och även motorbåtsläger för barnen. Närmaste golfbana är Norrova men Värmdö bjuder på ytterligare två fina golfbanor. 

Bussen tar oss in till Stockholm city på ca 40 minuter. Med bil finns två vägar, antingen över Vaxholm eller över Nacka, väldigt bra att kunna välja!

Man är medlem i Oxöns samfällighet som är hela Oxön, det finns flera gemensamma båtbryggor och det finns även en sjösättningsramp. En båtplats kostar under tusenlappen/år.

Till området hör en detaljplan med generös byggrätt. Kvar att bygga är 30 kvm, 20 kvm samt en friggebod får idag vara 15 kvm. På fastigheten finns även en äldre mindre friggebod. Marken runt fastigheterna är i detaljplanen bestämd till grönområde/parkmark, se bifogad detaljplanekarta.

Driftskostnader/år:
El: 23 303 Kwh
VA: 6 000:-
Renhållning: 4 000:-
Väg/Samfällighet: 3 600:-

Fastighetsskatt: 0 kronor tom år 2037

Pantbrev: Totalt 2 550 000:-

Fastighetsbeteckning: Värmdö Ängsvik 1:115

 

Fakta

Fakta

Upplåtelseform
Friköpt - Småhus
Byggnadsår
2022
Byggnadstyp
1,5 planshus
Uppvärmning
Vattenburen golvvärme/ Nibe luft/vatten värmepump
Fönster
3-glas
Fasad
Trä
Tak
Valsad plåt
Bjälklag
Trä
Stomme
Trä
Plåtarbete
Lackerad plåt
Grund
Gjuten betongplatta
Vatten och avlopp
Kommunalt VA
Ventilation
FTX
Tv- internetutbud
Fiber
Taxeringsvärde byggnad
3 168 000 kr
Taxeringsvärde tomt
1 779 000 kr
Taxeringsvärde totalt
4 947 000 kr

Dokument

Dokument

  • pdf Energideklaration.pdf
  • pdf Radonmätning Oxövägen 3.pdf
  • pdf Oxövägen 3 areamätning.pdf
  • pdf Arkitektritad tomtkarta.pdf
  • pdf Detaljplan karta.pdf
  • pdf Tillägg detaljplan.pdf

Planritning

visning

Kontakta ansvarig mäklare för visning

intresseanmälan

    Vi hjälper dig att finna det du söker

    Få de senaste objekten som matchar dina önskemål i din mailkorg innan de når marknaden. Anmäl dig till wredes spekulantregister och ange din sökning. Vi matchar alla objekt.

    Att sälja underhand

    En del av våra kunder föredrar en försäljning där man inte visar upp sitt hem helt publikt. Här ses ett urval av våra hem som Wrede säljer underhand. De visas endast på vår hemsida med begränsad information och syns inte på Hemnet. Vi har även flertalet villor, våningar samt lant-& sjöställen till salu som inte visas här. Söker ni ett exceptionellt hem utöver det vanliga? Vänligen kontakta oss på info@wrede.se så berättar vi mer om vårt underhandsutbud.

    SPEKULANTREGISTER

    Om du vill göra en intresseanmälan för olika typer av objekt (våningar, villor, lant & sjöställen, skåne & gotland) måste du anmäla dig för varje objektstyp.

    Wredes nyhetsbrev

    Varje vecka får du ta del av Wredes senaste objekt som ännu inte nått den öppna marknaden. Här läser du om de mest extravaganta hemmen, blir uppdaterad om de våra underhandsförsäljningar och får ta del av inbjudningar till kommande exklusiva event hos Wrede.
    Söker du ny bostad? Anmäl dig till Wredes spekulantregister