Mer info

Lummig oas på Östermalms bästa läge

Narvavägen 18 – Östermalm

Boarea 89 kvm Rum | Våning 4 rok | Bv, Ög
Pris Såld Avgift 4 391 kr

Juridisk person accepteras. Mycket väldisponerad och trivsam 4:a om ca 89 kvm med en enastående egen träbelaggd uteplats om ca 75 kvm med lummig grönska och fina planteringar.  Lugnt och tyst belägen på en av Östermalms bästa adresser med direkt närhet till såväl Djurgårdens promenadstråk som Karlaplan med Fältöverstens stora utbud.
Mycket välskött sekelskiftesfastighet och skuldfri förening.

Bilder

Beskrivning

Rumsbeskrivning

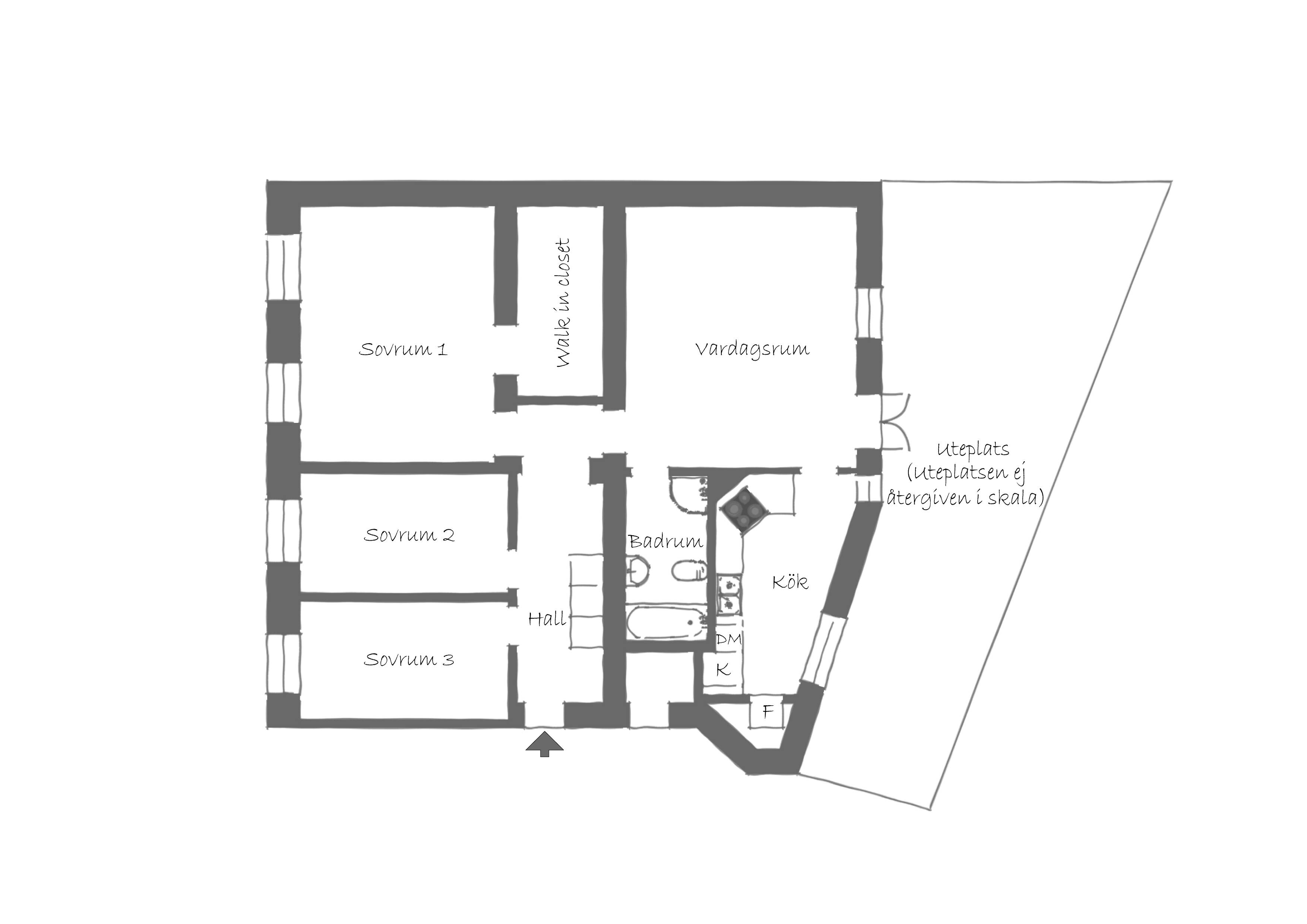
Välkomnande hall med säkerhetsdörr samt generösa garderober. Tre bra sovrum i fil med fina fönster och utsikt mot innergården. Master-bedroom har egen, mycket generös walk-in-closet.

Stort och ljust sällskapsrum med gott om plats för sittgrupp, rymlig matplats samt utgång till den fantastiska egna terrassen om ca 75 kvm. Terrassen har trädäck samt omges av fina, välskötta upphöjda planteringar med bl a etablerade rosenbuskar, syren, clematis och jasmin. I sällskapsrum finns eventuellt möjlighet att installera kakelugn eller öppen spis om en äldre befintlig skorstenskanal kan tas i bruk.

Det trivsamma köket är inrett med stilrena grå luckor, arbetsytor i granit samt hel-integrerade vitvaror såsom kyl, frys, induktionshäll, ugn, mikrovågsugn och diskmaskin. När köket installerades 2019 slipades och hårdvaxoljades även de vackra fiskbensparkett-golven i hela bostaden.

Mycket generöst familjebadrum, helkaklat i vitt med grått golvklinker. Badkar, dusch, wc, handfat samt inbyggda förvaringsskåp.

Takhöjd är ca 285-290 cm genomgående.

Detta gemytliga hem är genomgående ljust och idealiskt lugnt beläget mellan två innergårdar på en av Östermalms absolut mest eftertraktade adresser.

 

Brf Fanan nr 21

BRF Fanan 21 äger fastigheten STOCKHOLM FANAN 21 med 17 bostadsrättslägenheter på adresserna Narvavägen 18 och 18A. Föreningen klassas som äkta. 

Gemensam tvättstuga, belägen på nedre botten i gårdshuset. Precis utanför dörren till lägenheten.

Utförda renoveringar:

1984 - Rörstambyte, elstigar, gård, fönster, fasad

2000 - Tak

2010 - Trapphus

2015 - Uppvärmningssystem

Planerat:

Nya fläktar på tak gårdshus.

Fakta

Fakta

Upplåtelseform
Bostadsrätt - Lägenhet
Andel i föreningen
5.626 %
Lägenhetsnummer
14
Ingår i avgiften
Värme, V/A, el, Kabel-TV och bredband Basutbud
Våningsplan
Bv, Ög
Förråd
Lägenhetsinnehavaren disponerar Källarförråd, ca 6 kvm
Förening
BRF Fanan nr 21
Bostadens nettoskuldsättning
0 kr

Driftskostnad

Försäkring
249 kr/ mån
Driftskostnader totalt
249 kr/ mån

Dokument

Dokument

  • pdf Ladda ner som PDF

Planritning

Vi hjälper dig att finna det du söker

Få de senaste objekten som matchar dina önskemål i din mailkorg innan de når marknaden. Anmäl dig till wredes spekulantregister och ange din sökning. Vi matchar alla objekt.

Att sälja underhand

En del av våra kunder föredrar en försäljning där man inte visar upp sitt hem helt publikt. Här ses ett urval av våra hem som Wrede säljer underhand. De visas endast på vår hemsida med begränsad information och syns inte på Hemnet. Vi har även flertalet villor, våningar samt lant-& sjöställen till salu som inte visas här. Söker ni ett exceptionellt hem utöver det vanliga? Vänligen kontakta oss på info@wrede.se så berättar vi mer om vårt underhandsutbud.

SPEKULANTREGISTER

Om du vill göra en intresseanmälan för olika typer av objekt (våningar, villor, lant & sjöställen, skåne & gotland) måste du anmäla dig för varje objektstyp.

Wredes nyhetsbrev

Varje vecka får du ta del av Wredes senaste objekt som ännu inte nått den öppna marknaden. Här läser du om de mest extravaganta hemmen, blir uppdaterad om de våra underhandsförsäljningar och får ta del av inbjudningar till kommande exklusiva event hos Wrede.
Söker du ny bostad? Anmäl dig till Wredes spekulantregister