Mer info

Gert Wingårdh-hus i Vemdalen

Myrbärsstigen 19 Vemdalsskalet – Vemdalen

Boarea 112 kvm Rum 4 rok
Pris Pris på förfrågan Tomtarea 1 096 kvm

Ett arkitektritat Gert Wingårdh hus med ett optimalt läge på klassiska skidorten Vemdalsskalet med sina anor sedan 1930-talet om 112 effektiva kvm på en tomt om drygt 1 000 kvm. Genom att lyfta upp huset från marken med sina styltor omges man av en än mer slående panoramavy genom stora fönsterpartier i alla väderstreck mot orörd natur, högfjäll och himmel. Ett hus som karaktäriseras av sina detaljer, såväl interiört som exteriört, platsbyggd inredning och omsorgsfullt valda träslag och material. Med ett generöst ljusinsläpp, en imponerande takhöjd och en social planlösning upplevs detta moderna fjällhus som en oas för lediga stunder med längdspår och vandringsleder runt hörnan och med närheten till liftar och Vemdalsskalets Torg med dess utbud av service, hotell, restauranger och butiker. Huset ligger tillsammans med tre liknande hus ritade av Gert Wingårdh vilket ger ett homogent intryck samtidigt som husen är byggda i olika vinklar så insynen blir minimal och med olika utsikter från varje hus.

Bilder

Beskrivning

Interiör

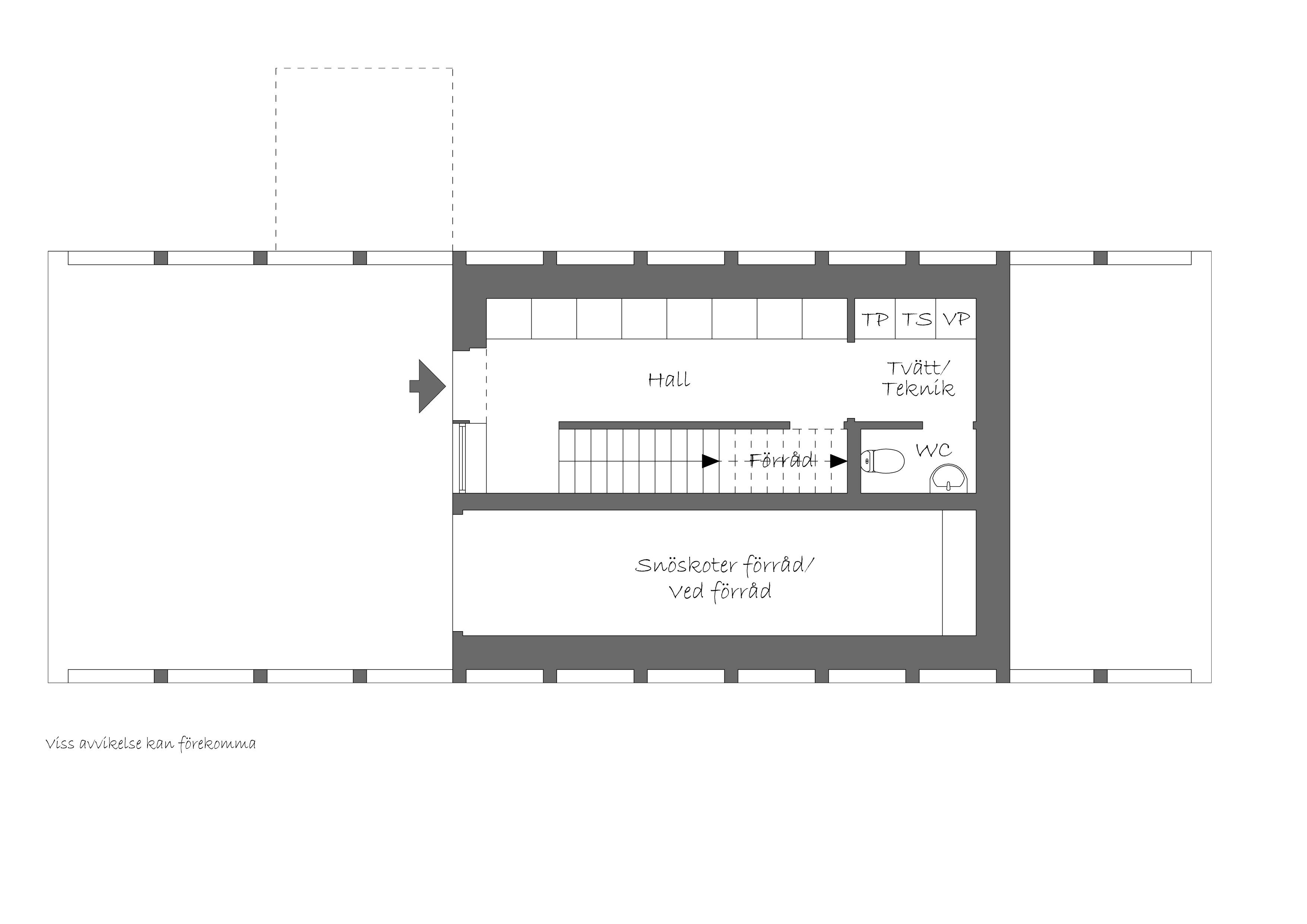
Bilar parkeras under tak med direkt entré till skotergarage och huset. Entréplan med en stor hall med gott om praktisk avhängning och förvaring och med en fullt utrustad tvättstuga och wc i anslutning. Trappan leder upp till det övre planet med ett generöst öppet kök och vardagsrum med panoramafönster med bred nisch att sitta i, öppen spis och med utgång till den möblerbara terrassen. I passagen in till den privata avdelningen med två sovrum har man platsbyggt en sittnisch i ett andra av husets panoramafönster samt en vacker bänk med förvaring. Två bra sovrum varav det ena med terrassdörr och i anslutning till den stora och exklusiva badrumsavdelningen med bastu. Det andra med en våningssäng och utöver detta kommer även det inredda loftet med plats för en dubbelsäng och nattduksbord under takåsen. Fastigheten ligger i direkt närhet till Vemdalsskalets omfattande alpina skidområde och inom promenadavstånd ligger inbjudande Skalets torg med restauranger, butiker, ICA och nöjen.

Fakta

Fakta

Upplåtelseform
Friköpt - Småhus
Byggnadsår
2020
Byggnadstyp
Tvåplanshus
Uppvärmning
Frånluftsvärmepump NIBE med vattenburen golvvärme i samtliga rum.
Fönster
3-glas
Fasad
Trä
Tak
Takpapp
Bjälklag
Trä
Stomme
Trä
Grund
Platta på mark
Vatten och avlopp
Kommunalt vatten året om/Kommunalt avlopp.
Ventilation
076
Taxeringsvärde byggnad
2 879 000
Taxeringsvärde tomt
1 047 000
Taxeringsvärde totalt
3 926 000

Driftskostnad

El
2 143 kr / mån
Vatten/Avlopp
533 kr / mån
Samfällighet
583 kr / mån
Renhållning
59 kr / mån
Försäkring
339 kr / mån
Driftskostnader totalt
3 658 kr / mån
Driftkostnad kommentar
Försäkringsbolag: Trygg Hansa

Dokument

Dokument

  • pdf Wrede Villa Information inför bostadsöverlåtelse

Planritning

Välkommen på visning

visning lördag, 1 november 2025
Kontakta mäklaren för tidsbokning
Spara i min kalender

Vi hjälper dig att finna det du söker

Få de senaste objekten som matchar dina önskemål i din mailkorg innan de når marknaden. Anmäl dig till wredes spekulantregister och ange din sökning. Vi matchar alla objekt.

Att sälja underhand

En del av våra kunder föredrar en försäljning där man inte visar upp sitt hem helt publikt. Här ses ett urval av våra hem som Wrede säljer underhand. De visas endast på vår hemsida med begränsad information och syns inte på Hemnet. Vi har även flertalet villor, våningar samt lant-& sjöställen till salu som inte visas här. Söker ni ett exceptionellt hem utöver det vanliga? Vänligen kontakta oss på info@wrede.se så berättar vi mer om vårt underhandsutbud.

SPEKULANTREGISTER

Om du vill göra en intresseanmälan för olika typer av objekt (våningar, villor, lant & sjöställen, skåne & gotland) måste du anmäla dig för varje objektstyp.

Wredes nyhetsbrev

Varje vecka får du ta del av Wredes senaste objekt som ännu inte nått den öppna marknaden. Här läser du om de mest extravaganta hemmen, blir uppdaterad om de våra underhandsförsäljningar och får ta del av inbjudningar till kommande exklusiva event hos Wrede.
Söker du ny bostad? Anmäl dig till Wredes spekulantregister