Historisk gård med pool
Tollarp
| Boarea | Biarea 200 kvm | 80 kvm | Rum 8 rok |
| Pris Pris på förfrågan | |
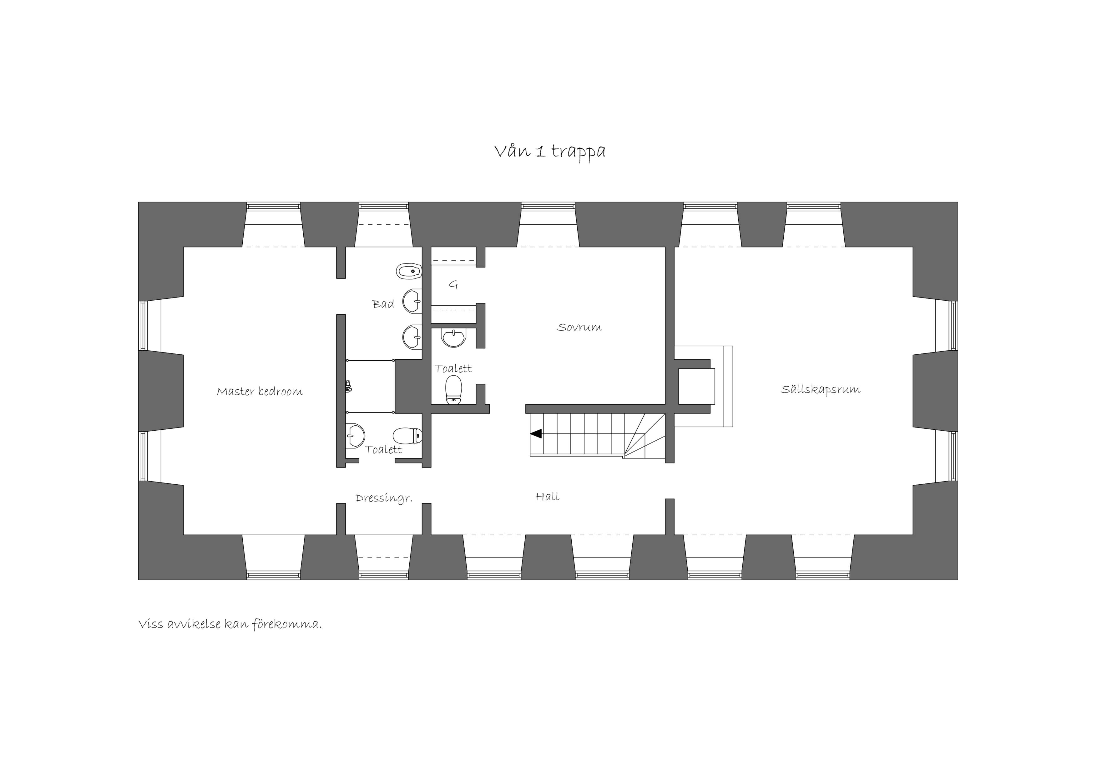
Idylliskt belägen gård i nordöstra Skåne, med anor som syns i det välbevarade bostadshuset med metertjocka väggar och vallgravar. Elegant och inbjudande mangårdsbyggnad i herrgårdsstil uppförd omkring år 1800. Väldisponerad över tre plan och 280 kvadratmeter är denna historiska gård ett perfekt hem för familjen. I boningshuset finns åtta rum och kök, varav fyra sovrum, två badrum samt gästtoalett. Gårdsbyggnad med inrett kontor/sällskapsrum, sovrum samt badrum. Fastigheten är välskött och håller hög standard med moderna bekvämligheter. Här erbjuds generösa sällskapsytor med tidstypisk charm och ljusa rum i representativ miljö. På gården finns poolhus med inomhuspool, bastu och gym. Tomten om 182 774 kvm omfattar skog, åker- och betesmark i vacker naturmiljö. En å flyter vackert genom ägorna. Byggnadens energideklaration gav bästa energiklass A pga solceller samt jordvärmesystem och fastigheten är registrerad som lantbruksfastighet. Belägen i en charmig ort i hjärtat av Skåne, omgiven av vacker natur och böljande fält. Här finns ett välutbyggt serviceutbud med butiker, skolor och goda kommunikationer till både Kristianstad och Malmö. Närheten till fina rekreationsområden gör boendet till en idealisk plats för både familjeliv och friluftsliv.
Dokument
Dokument
Planritning
visning
intresseanmälan
Att sälja underhand




