Stor tvåa med balkong

Östermalmsgatan 30 - Östermalm, Stockholm

Boarea
94 kvm
Rum | Våning
2 rok | 1
Pris
Såld
Avgift
4 858 kr / mån

Välkommen till denna rymliga tvåa på ett av Östermalms bästa lägen med utsikt över Danderydsgatan. Våningen har ett stort vardagsrum med balkong i sydvästläge som vetter mot trevlig innergård. Fina originaldetaljer bevarade. Stort sovrum med gott om garderober och härligt ljusinsläpp från Danderydsgatan. I direkt anslutning till hallen nås det sobra köket i vacker ljusgrå nyans med en bänkskiva i både rosfritt stål och svart granit. God plats för förvaring i både över- och underskåp samt all önskvärd maskinell utrusning finns att tillgå såsom vinkyl av märket Liebherr. Plats för matbord för 6-8 personer. Helkaklat badrum utrustat med handfat ovan kommod, WC och badkar. Gäst-WC och säkerhetsdörr. Lill-Jansskogen, Östra station, Humlegården, kommunikationer och en mängd trevliga restauranter och kaféer ligger ett stenkast bort. Välkommen till lugna kvarter mellan Lärkstaden och Villastaden.

Bilder
Beskrivning

BRF

FASTIGHETEN OCH FÖRENINGEN
Huset byggdes 1924. Brf Näktergalen 23 förvärvade fastigheten 2000 och är en äkta bostadsrättsförening som upplåter fastigheten med tomträtt. Föreningen består av 31 lägenheter upplåtna med bostadsrätt. Gemensam tvättstuga & cykelrum i källaren. Juridisk person accepteras inte men delat ägande godkänns. Andrahandsuthyrning föredras inte men kan beviljas vid behov. Mantalsskrivning är ett krav. Föreningen tar ut en överlåtelseavgift av säljaren samt en pantsättningsavgift av köparen. Föreningen har en belåning om ca 3000 kr/kvm (2023). Kabel-tv med basutbud finns i fastigheten via Comhem och internet via Bredbandsbolaget. Väl underhållen fastighet med en lummig innegård.

GENOMFÖRDA RENOVERINGAR

1993 - Byte av elstigare, trapphusrenovering.
1995 - Stambyte.
2004 - Fasadrenovering mot Östermalmsgatan, installation av två balkonger mot innergården.
2008 - Hissrenovering i samband med byggnation av vindsvåningar.
2012 - Fönstermålning.
2015 - Stamspolning, taket mot Östermalmsgatan lades om.
2017 - Ommålning av fasaden mot Östermalmsgatan.
2017/2018 - Målning av fönster och balkongdörrar samt lagning av fasad mot Danderydsgatan.
2018 - Installation av en balkong mot innergården.
2019 - Byte av elcentral, trapprenovering, installation av säkerhetsdörrar, ommålning ytskikt i trapphuset.
2020 - Renovering och målning av fönsterkarmar och fönster i stora delar av huset, uppdatering av tvättstugan, byte fjärrvärmecentral.
2021 - Fasadrenovering och takrenovering mot Danderydsgatan.
2022 - Byte av data undercentral (DUC), installation av en balkong mot innergården.

PLANERADE RENOVERINGAR

2023 - Översyn ytskikt på balkonger.
2025 - Översyn hiss.

EKONOMI

Föreningen kan behöva höja hyran. Idag är tomträttsavgällden 347 000 kr/år och kommer höjas 2025. Föreningen vet inte exakt hur mycket eller omfattningen ännu.

GEMENSAMMA UTRYMMEN

Innergård.
Tvättstuga.
Cykelrum.

TV/BREDBAND

Kabel-TV via Tele2 där grundutbudet ingår i månadsavgiften.
Bredband via IP-Only, individuell anslutning.

PARKERING

Föreningen disponerar inte över några parkeringsplatser, boendeparkering gäller i området.

ÖVRIGT

Föreningen godkänner delat ägande, mantalsskrivning är ett krav.
Föreningen godkänner inte juridisk person som köpare.
Överlåtelse- och pantsättningsavgift tas ut enligt stadgar. Överlåtelseavgift betalas av köpare.

OMRÅDE

Här bor du mitt mellan Lärkstaden och Villastaden med närhet till stadens puls, Stureplan och till grönskande Humlegården, Hagaparken, Lil-Jans skogen och Djurgården. I området finns några av Östermalms trevligaste restauranger, såsom Un Poco, Hantverket, Tengu, Bar Nimes och OMAKA. Här ligger även Mr Cake och Petit Marche. Du når SATS Spårvagnshallarna och Ica Humlegården inom några minuter. Röda linjens tunnelbana tar dig till stadens alla hörn.

Fakta
Upplåtelseform
Lägenhet - Bostadsrätt
Andel i föreningen
3.93330 %
Andelstal avgift
3.93433 %
Lägenhetsnummer
738
Ingår i avgiften
Värme, Vatten, Kabel-TV (bas), Bredband (bas)
Våningsplan
1
Hiss
Ja
Förråd
Lägenhetsinnehavaren disponerar Källarförråd
Förening
Brf Näktergalen 23
Byggnadsår
1924
Energiprestanda
141 kWh/Kvm och år
Bostadens nettoskuldsättning
Baserad på ÅR 2022
228 691 kr
Boarea
94 kvm (Uppgift från föreningen)
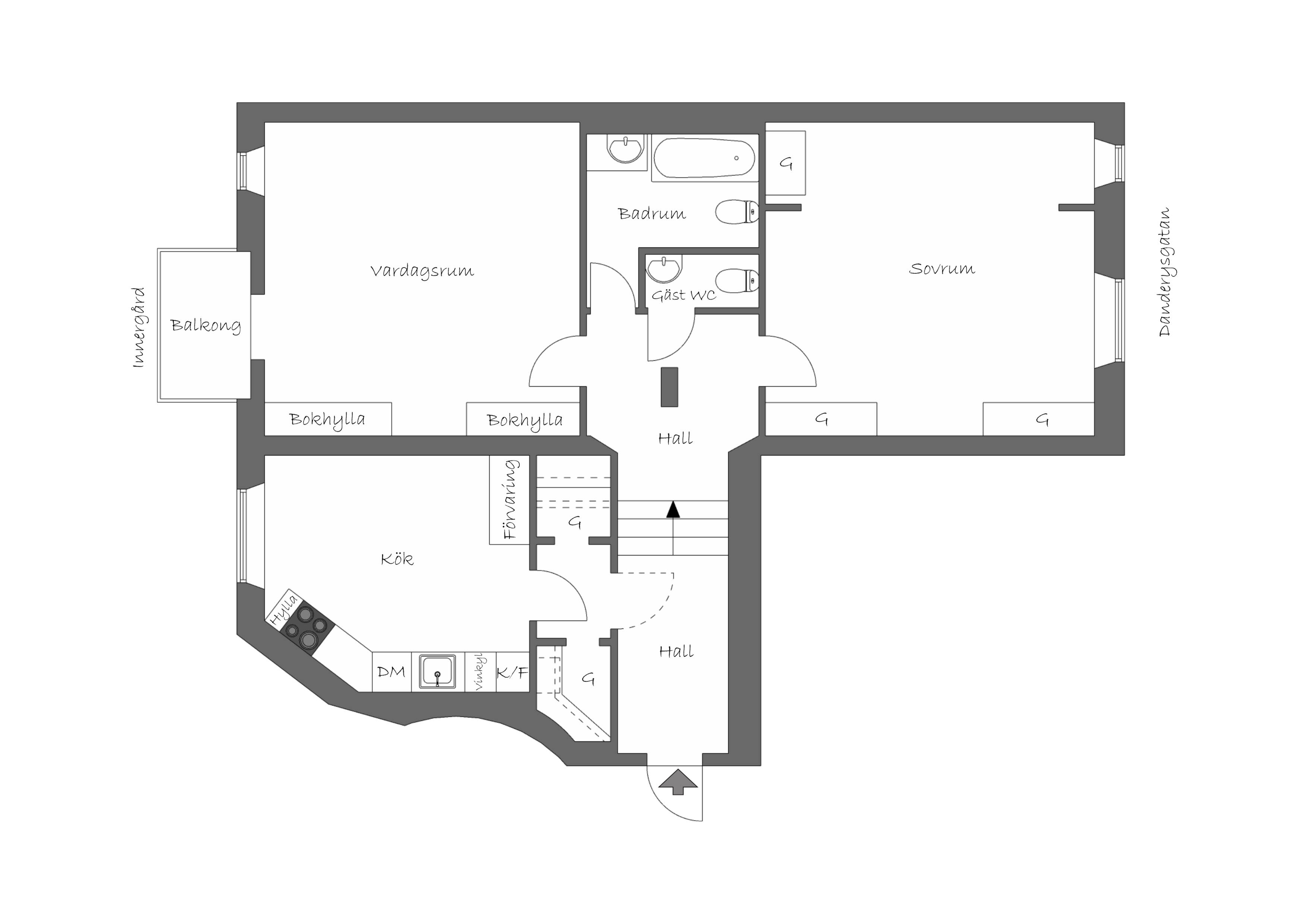
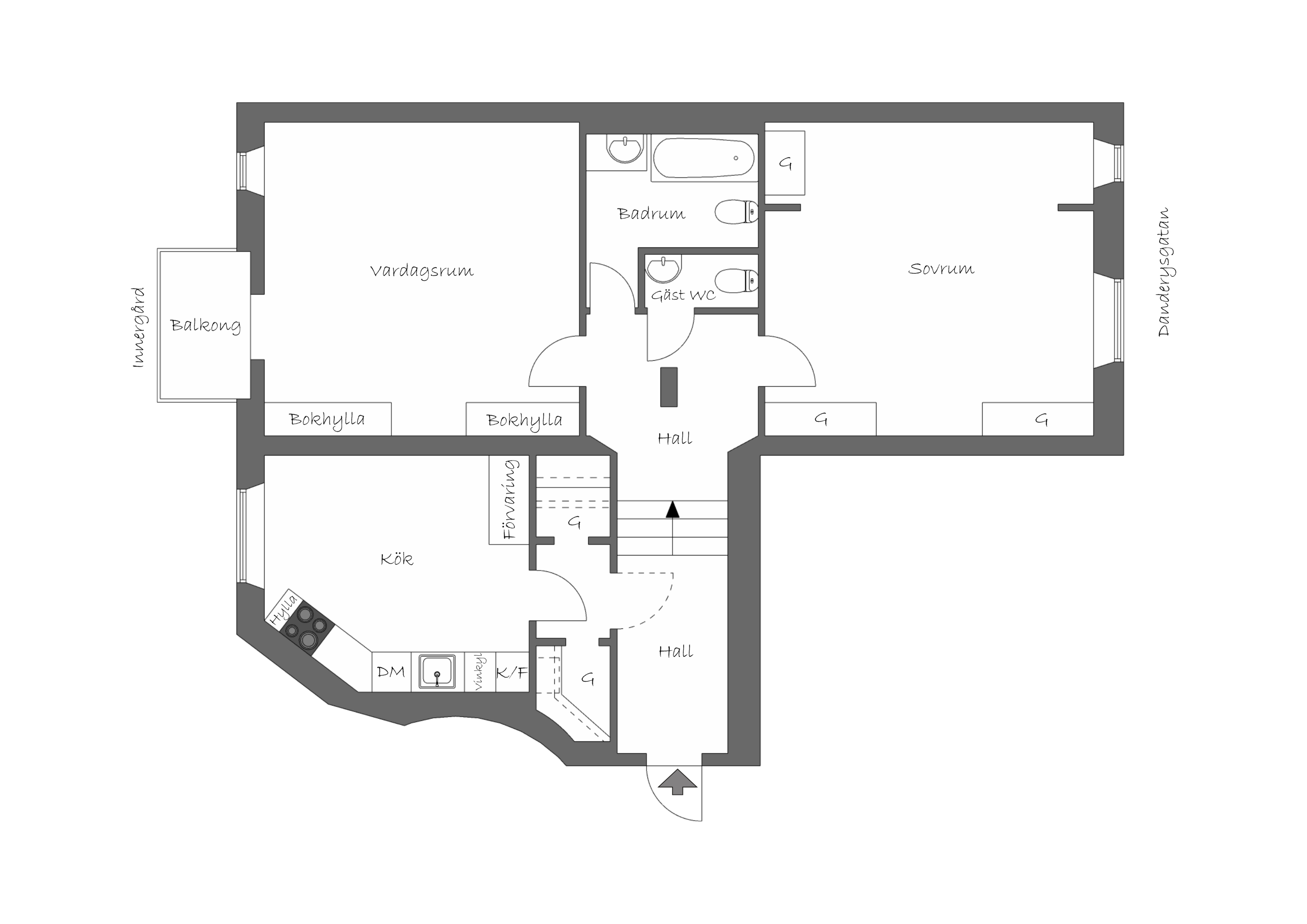
Planritning
Planritning

Visning

Kontakta ansvarig mäklare för visning.

Intresseanmälan

Fyll i formuläret nedan för att anmäla ditt intresse.





    Kontakt

    Fler hem till salu

    Vi hjälper dig att finna det du söker

    Få de senaste objekten som matchar dina önskemål i din mailkorg innan de når marknaden. Anmäl dig till wredes spekulantregister och ange din sökning. Vi matchar alla objekt.

    Att sälja underhand

    En del av våra kunder föredrar en försäljning där man inte visar upp sitt hem helt publikt. Här ses ett urval av våra hem som Wrede säljer underhand. De visas endast på vår hemsida med begränsad information och syns inte på Hemnet. Vi har även flertalet villor, våningar samt lant-& sjöställen till salu som inte visas här. Söker ni ett exceptionellt hem utöver det vanliga? Vänligen kontakta oss på info@wrede.se så berättar vi mer om vårt underhandsutbud.

    SPEKULANTREGISTER

    Om du vill göra en intresseanmälan för olika typer av objekt (våningar, villor, lant & sjöställen, skåne & gotland) måste du anmäla dig för varje objektstyp.

    Wredes nyhetsbrev

    Varje vecka får du ta del av Wredes senaste objekt som ännu inte nått den öppna marknaden. Här läser du om de mest extravaganta hemmen, blir uppdaterad om de våra underhandsförsäljningar och får ta del av inbjudningar till kommande exklusiva event hos Wrede.