Mer info

Högt och fritt med balkong

Värtavägen 24 – Östermalm/Gärdet

Boarea 52 kvm Rum | Våning 2 rok | 3
Pris Såld Avgift 1 838 kr

Välkommen till denna väldisponerade och ljusa tvåa om ca 53 kvm med stor balkong i mycket stabil och trygg förening med god ekonomi. I fastigheten erbjuds garage med många platser och kort kö, swimming-pool, gym och stor, välskött innergård med Boule-bana och fruktträd. 
Ett idealiskt och lätttillgängligt boende i ett lugnt, centralt område med direkt närhet till Tessinparken, Karlaplan med Fältöverstens stora utbud samt till mycket goda kommunikationer.

Bilder

Beskrivning

Allmänt

Garage finns i fastigheten med 107 platser. Platserna tillhör inte lägenheterna, men kötiden brukar vara kort. Plats för bilvård/tvätt. Vid intresse av att hyra garageplats eller vid uppsägning, kontakta Styrelsen. Kostnad: 750kr/månad.

En hobbyverkstad för mindre snickeriarbeten finns i källarplanet Banérgatan 87.

Fritidslokal med kök, pingisbord och gym. Omklädningsrum för dam respektive herr, med duschar och bastu. Swimmingpool. 

Två välutrustade tvättstugor samt torkrum i entréplan på Värtavägen 24-26 och Banérgatan 83.

Cykelrum finns i källaren, ingång invid Banérgatan 85. Cykelställ finns mot gatan vid Värtavägen 30 och vid entrén till Värtavägen 24.

Barnvagnsrum.

Återvinningsrum finns i garaget alldeles intill garageutfarten. (Ett sopnedkast finns precis utanför ytterdörren till lägenheten)

Stor, välskött gård med boule-bana, sittplatser samt flertalet fruktträd.

 

Rumsbeskrivning

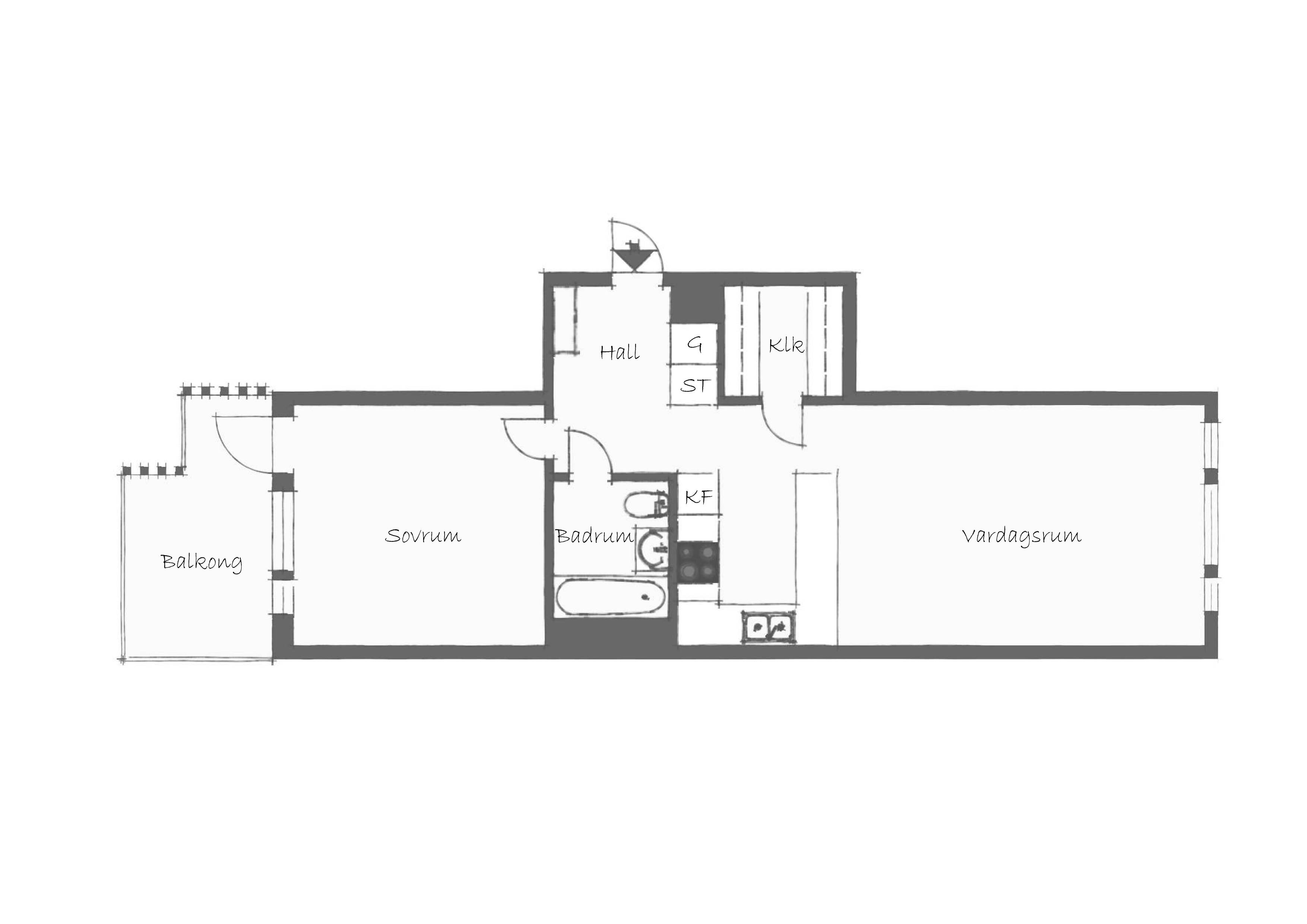
Hall med platsbyggda garderober samt ytterligare avhägningsutrymme. Intill hallen finns även en stor walk-in-closet.

Badrum, helkaklat i vitt med grått golvklinker och el-golvvärme. Fristående badkar på tassar med väggmonterad dusch, wc, handdukstork samt handfat på kommod med väggmonterat spegelskåp ovan.

Kök, matplats och sällskapsrum i öppen planlösning med gott om ljusinsläpp genom fönster längs hela ytterväggen mot Värtavägen. Köket har gott om förvaring bakom mörkgrå luckor samt integrerade vitvaror såsom kyl/frys, diskmaskin, spis, ugn och microvågsugn. samtliga från Bosch. Arbetsbänkytor i målat trä samt stänkskydd i glas.

Trivsamt och rymligt sovrum, tyst och lugnt beläget och med fri utsikt över gården. Fönster längs hela yttervägen samt utgång till den stora balkongen i syd/öst.

Brf Resolutionen

Föreningen bildades och registrerades den 6 februari 1975. Projekteringen påbörjades under 1975 av Lettströms arkitektkontor med Aare Sachs som ansvarig arkitekt. Huset byggdes 1977-1979 med Nya Asfalt AB (numera NCC) som totalentreprenör.

I föreningen finns 135 bostadsrättslägenheter, fördelade på 1, 2, 3, 4 och 5-rumslägenheter och en bostadsrättslokal. I lokalen finns en förskola (markplanet Värtavägen 24 28). I gatuplanet hyrs lokaler ut till en frisör samt två som kontor. Ett garage med 104 platser finns i källarplanet under trädgården med infart från Banérgatan 85. Garaget kan nås från samtliga trapphus via källargångar.

Inga avgiftsförändringar planerade.

UNDERHÅLL

2017
Målning av fönster slutfördes.
Takåtgärder som nockplåt och målning där flagning av färg skett.
Spolning av avloppsstammar.
Obligatorisk ventilationskontroll (OVK) av lokaler.
Kameraövervakning i gagaget utbytt.

2016
Utbyte av porttelefoner klart.
Målning av plåttak vid porttak och över förskolans entré Värtavägen.
Målning av fönster påbörjades.
Montering av nödljusbelysning i källargångar
Hissunderhåll byte av styrskofoder, ny automatdörr Banérgatan 85.
Stamventiler utbytta, samtliga stamventiler är nu bytta.
Uppgradering av Dataundercentral (DUC).

2015
Utbye av porttelefoner påböjades.
Garagerenovering, pelare och målning.
Obligatorisk ventilationskontroll (OVK) godkänd (påbörjad dec 2014). 
Skador på fasad vid förskolerampen lagade.
Elrevision av fastighetens ställverk.

2014
Byte av värmeslingor för resterande takbrunnar.
Ommålning av plank och underhåll av trätrall vid några av uteplatserna.

2013
Renovering av pool- och motionsavdelning avslutad.
Byte av innanmätet i tilluftsaggregat TA3 och TA4.
Byte av värmeslingor och åtgärd av läckage till fyra takbrunnar.

2012
Ombyggnad av värmeåtervinningscentral inkl. utbyte av frånluftsvärmepumpar.
Renovering av pool- och motionsrum samt poolrummet.
Ny nödbelysning trapphus och hissar.
Målning av golv och väggar i grovsoprum samt tak och väggar i tvättstugor och torkrum.

2011
Målning av golv och väggar källargångar.

2010
Nya VVC-ventiler (VarmVattenCirkulation).

2009
OVK-besiktning och energideklaration.
Termostater på radiatorer.
Larmtelefoner hissar.
Spolning avloppsstammar.
Besiktning balkonger.

2008 
Undercentral, värmeåtervinning och ventilation.

2007
Kamera övervakning garage.
Tvättplats garaget.
Fuktkontroll samtliga badrum.

PLANERAT UNDERHÅLL

Reparation av kakelfogar på fasader samt fasadsprickor.
Byte eller renovering av samtliga entrédörrar.
Reparation gårdsbjälklag.
Underhåll av befintlig gårdsbelysning.
Ommålning av smidesräcken på gården.
Byte av tvättstugeutrustning. Maskinparken byts ut löpande då maskinerna går sönder och inte lönar sig att reparera.
Besiktning av taket som underlag för eventuella reparationer och uppdatering av taksäkerheten.

 

 

 

Fakta

Fakta

Upplåtelseform
Bostadsrätt - Lägenhet
Andel i föreningen
0.54194 %
Lägenhetsnummer
006
Ingår i avgiften
värme, VA, kabel-TV
Våningsplan
3
Hiss
Ja
Förråd
Lägenhetsinnehavaren disponerar Vindsförråd
Förening
BRF Resolutionen
Byggnadsår
1977 - 1979
Energiprestanda
134 kWh/Kvm och år
Bostadens nettoskuldsättning
0 kr

Dokument

Dokument

  • pdf Ladda ner som PDF

Planritning

Vi hjälper dig att finna det du söker

Få de senaste objekten som matchar dina önskemål i din mailkorg innan de når marknaden. Anmäl dig till wredes spekulantregister och ange din sökning. Vi matchar alla objekt.

Att sälja underhand

En del av våra kunder föredrar en försäljning där man inte visar upp sitt hem helt publikt. Här ses ett urval av våra hem som Wrede säljer underhand. De visas endast på vår hemsida med begränsad information och syns inte på Hemnet. Vi har även flertalet villor, våningar samt lant-& sjöställen till salu som inte visas här. Söker ni ett exceptionellt hem utöver det vanliga? Vänligen kontakta oss på info@wrede.se så berättar vi mer om vårt underhandsutbud.

SPEKULANTREGISTER

Om du vill göra en intresseanmälan för olika typer av objekt (våningar, villor, lant & sjöställen, skåne & gotland) måste du anmäla dig för varje objektstyp.

Wredes nyhetsbrev

Varje vecka får du ta del av Wredes senaste objekt som ännu inte nått den öppna marknaden. Här läser du om de mest extravaganta hemmen, blir uppdaterad om de våra underhandsförsäljningar och får ta del av inbjudningar till kommande exklusiva event hos Wrede.
Söker du ny bostad? Anmäl dig till Wredes spekulantregister