Sekelskiftesvåning med centralt och högt läge

David Bagares gata 26 A - Norrmalm, Stockholm

Boarea
89 kvm
Rum | Våning
3 rok | 2/3
Pris
Såld
Avgift
3 962 kr / mån

Med ett högt läge två av tre trappor upp i fastighet från 1882 finns denna fina sekelskiftesvåning med två fungerande kakelugnar. Våningens 89 kvm fördelas över tre rymliga rum i fil, kök och ett badrum samt stor walk-in closet och karaktäriseras av klassiska 1880-talsattribut som hög takhöjd, vackra trägolv, stora fönster och klassiska snickerier. Hall med garderob. Nyrenoverat badrum med dusch, wc, och golvvärme. Stort härligt vardagsrum med hög takhöjd och fungerande kakelugn. I fil finns två sovrum mot lugn enkelriktad gata. Kök med carraramarmorbänkar, diskmaskin, kombinerad tvättmaskin/torktumlare, matplats och fantastisk balkong med kvällssol. Stabil förening med god ekonomi.

Välkommen till en fin och välplanerad våning i mycket centrala, men lugna, kvarter. Här har man nära till såväl Stureplans puls som Johannesparkens grönska och lugn. Franska och Internationella skolan ligger dessutom runt hörnan.

Bilder
Beskrivning

BRF David Bagare

Föreningen bildades 2002 och består av 25 lägenheter och 1 lokal. Det finns tre trapphus: David Bagares gata 26 A och B som nås från David Bagares gata och C-huset som har ingång från gården. Det finns även en ingång till gården och alla tre trapphusen från Johannesgatan 1.

Föreningen äger marken.

Gemensamma utrymmen:

Grillplats med utemöbler på innergården.
Cykelhus på innergården.
Sopkärl för hushållssopor och återvinning är belägna i portalen ut mot Johannesgatan.
Källarförråd.
Tvättstuga som är belägen i källaren.

Utförda underhåll

2012 Fönster

2014 Stamspolning

2017 Brandskyddskontroll

2018 Byte av tvättmaskiner i tvättstugan

2018 Oljning av trädäck

2019 OKV

2019 Slamsugning av brunnar

2019 Taksäkerhetsbesiktning inkl åtgärdande av besiktningspunkter

2019 Byte fönster i tak i trapphus 26C

2020 Förbättring av hängränna och stuprör i A och B huset

2021 Nya lyktor till yttre portar mot gata samt renovering och målning av yttre träportar

2023 Fjärrvärme installeras. Detta arbete har påbörjats och kommer avslutas i september. Idag har föreningen direktverkande el och detta byts ut till fjärrvärmesystem. Detta bekostas av föreningen och ingen avgiftshöjning är planerad. 

Planerat kommande underhåll

Förening har låtit ta fram en detaljerad underhållsplan från 2021 fram till 2070. Utöver löpande underhåll planeras fasad- och fönsterrenoveringar under perioden 2026-2027.

Fakta
Upplåtelseform
Lägenhet - Bostadsrätt
Andel i föreningen
4.45090 %
Lägenhetsnummer
00013
Ingår i avgiften
Värme, Vatten, Kabel-TV (basutbud), Bredband, balkongunderhåll, säkerhetsdörr, varmvattenberedare
Våningsplan
2/3
Hiss
Ja (Rymlig)
Förråd
Lägenhetsinnehavaren disponerar Källarförråd
Förening
BRF David Bagare
Byggnadsår
1882
Bostadens nettoskuldsättning
Baserat på ÅR 2021 samt andelstal ägande.
224 058 kr

Driftkostnad

Värme
800 kr/mån
Försäkring
300 kr/mån
Driftkostnader totalt
1 100 kr/mån
Driftkostnad kommentar
Nu är det direktverkande el men kommer att bytas till fjärrvärme. Jobbet pågår nu och klart i september enligt föreningen.
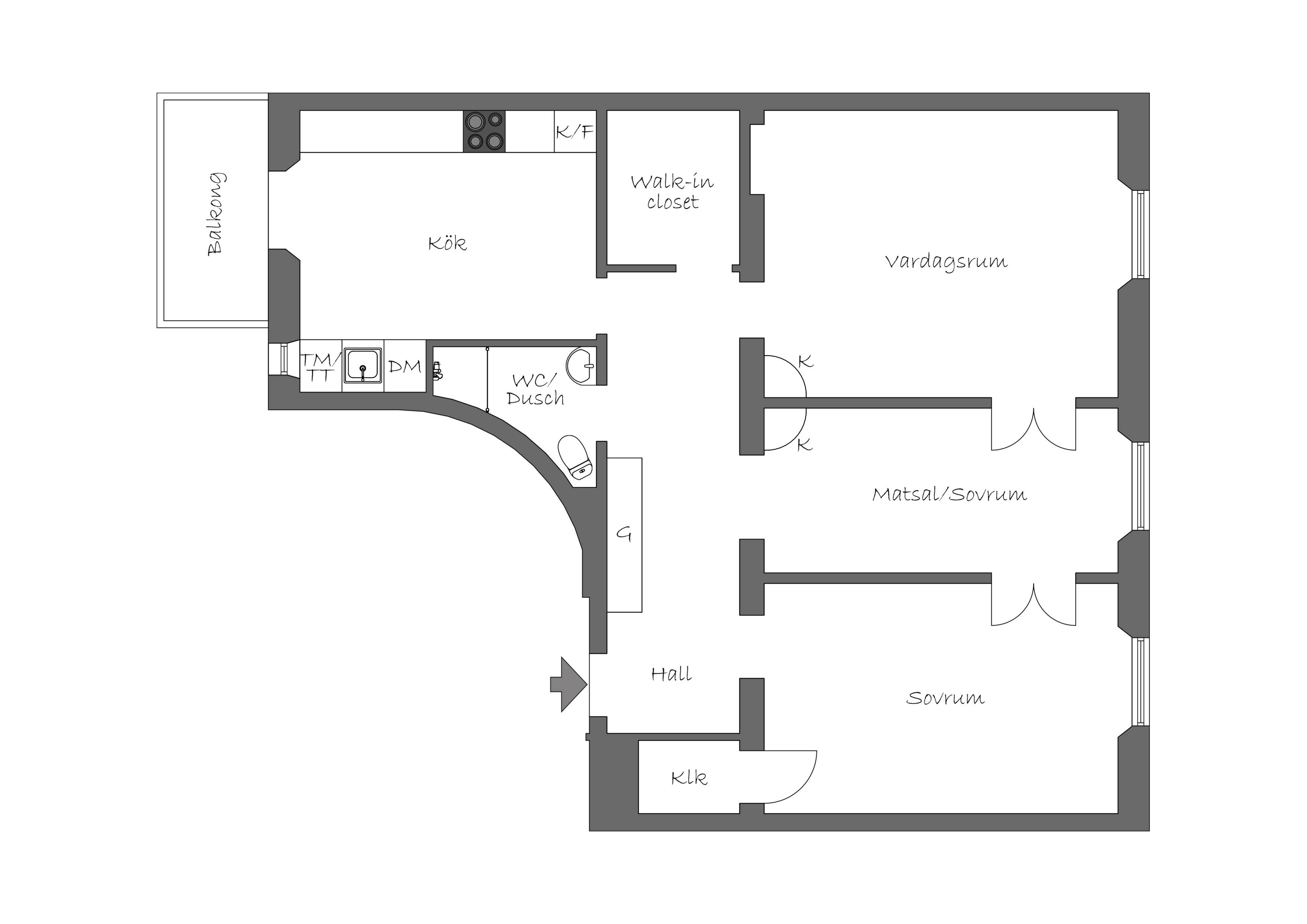
Planritning
Planritning

Visning

Kontakta ansvarig mäklare för visning.

Intresseanmälan

Fyll i formuläret nedan för att anmäla ditt intresse.





    Kontakt

    Fler hem till salu

    Vi hjälper dig att finna det du söker

    Få de senaste objekten som matchar dina önskemål i din mailkorg innan de når marknaden. Anmäl dig till wredes spekulantregister och ange din sökning. Vi matchar alla objekt.

    Att sälja underhand

    En del av våra kunder föredrar en försäljning där man inte visar upp sitt hem helt publikt. Här ses ett urval av våra hem som Wrede säljer underhand. De visas endast på vår hemsida med begränsad information och syns inte på Hemnet. Vi har även flertalet villor, våningar samt lant-& sjöställen till salu som inte visas här. Söker ni ett exceptionellt hem utöver det vanliga? Vänligen kontakta oss på info@wrede.se så berättar vi mer om vårt underhandsutbud.

    SPEKULANTREGISTER

    Om du vill göra en intresseanmälan för olika typer av objekt (våningar, villor, lant & sjöställen, skåne & gotland) måste du anmäla dig för varje objektstyp.

    Wredes nyhetsbrev

    Varje vecka får du ta del av Wredes senaste objekt som ännu inte nått den öppna marknaden. Här läser du om de mest extravaganta hemmen, blir uppdaterad om de våra underhandsförsäljningar och får ta del av inbjudningar till kommande exklusiva event hos Wrede.