Mer info

Elegant kungsvåning vid Riddarfjärden

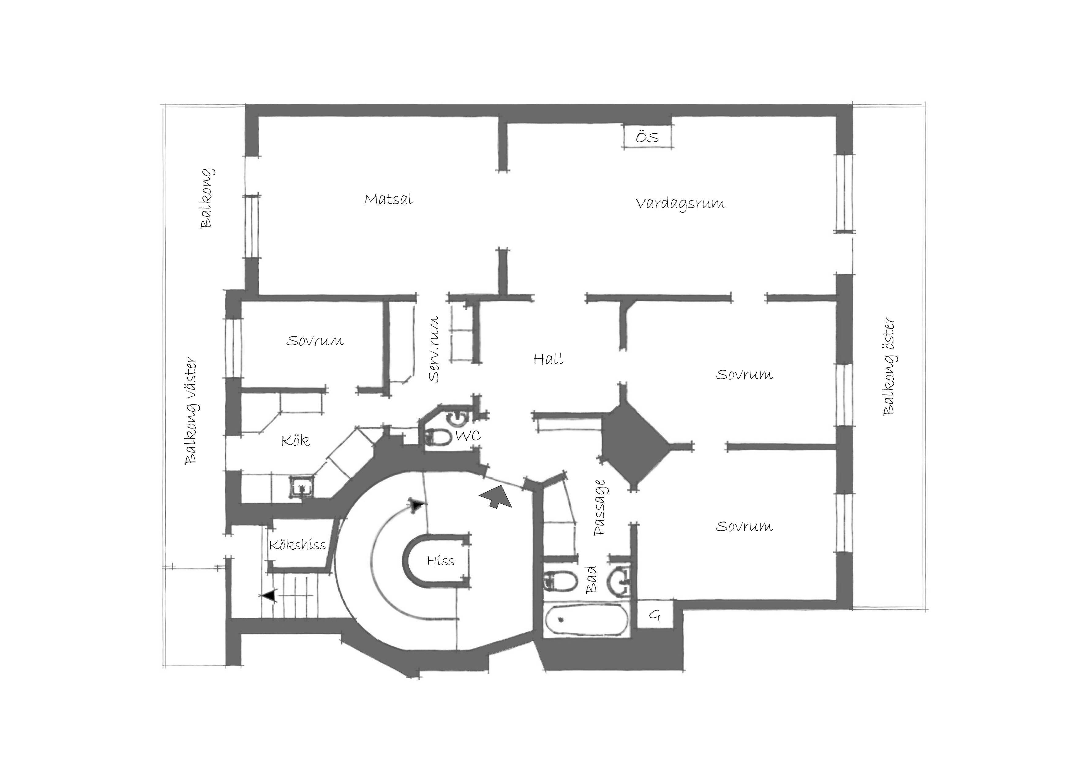
Norr Mälarstrand 52, 7 tr – Kungsholmen

Boarea 118 kvm Rum | Våning 5 rok | 7
Pris Såld Avgift 7 442 kr

Högst upp i välkänd och vacker fastighet från 1931, ligger denna mycket ljusa och attraktiva våning om 118 kvm. Den eleganta våningen karaktäriseras av sitt utomordentliga läge högst upp i huset. Ljuset, utsikten och kungsbalkonger i både öster och väster. Den öppna spisen, de tidstypiska vackra dörrarna, den generösa takhöjden och den gedigna fiskbensparketten är välbevarade originaldetaljer som denna unika våning stoltserar med. Tillhörande privat rymligt vindsförråd återfinns en halvtrappa upp. Välskött fastighet, stabil och lågt belånad bostadsrättsförening. På Norr Mälarstrand bor du med perfekt läge nära Kungsholmstorg, Fridhemsplan, Rålambshovsparken och i Stockholms mest restaurangtäta område.

Bilder

Beskrivning

BRF

Bostadsrättsföreningen Fågelbärsträdet 4 är en äkta förening som registrerades 1991 och bildades 2001. Föreningen består av ca 25 bostadsrätter samt 1 uthyrd lokal (rymmer kontor).

Fastigheten, ritad av arkitekten Birger Borgström och byggd 1931, karaktäriseras av sin funktionalistiska stil.

Funktionalismen anses ha fått sitt absoluta genombrott vid Stockholmsutställningen 1930.

Välskött fastighet, trivsam och välfungerande förening. Farstun är återställd till originalskick 2018, nyrenoverad huvudhiss, nyrenoverad köksingång och kökshiss. Sopnedkast finns utanför köksdörren.

Fina omgivningar med närliggande Riddarfjärdens möjligheter till bad och härliga promenader utefter vattnet, Rålambshovsparken, Smedsuddsbadet och närliggande Fågelbärsgården. I närområdet finns restauranger och det välkända bageriet Petite France alldeles om hörnet på John Ericssonsgatan.

Se årsredovisning för väsentliga händelser 2017.

 

Fakta

Fakta

Upplåtelseform
Bostadsrätt - Lägenhet
Andel i föreningen
5.1729 %
Lägenhetsnummer
171
Ingår i avgiften
Värme, Vatten, Kabel-TV (basutbud)
Kommentar Yta
115 kvm enligt förening.
Våningsplan
7
Hiss
Ja
Förråd
Lägenhetsinnehavaren disponerar källareförråd och vindsförråd
Förening
BRF Fågelbärsträdet 4
Byggnadsår
1931
Energiprestanda
138 kWh/Kvm och år
Bostadens nettoskuldsättning
0 kr

Driftskostnad

El
250 kr/ mån
Försäkring
200 kr/ mån
Gas
54 kr/ mån
Driftskostnader totalt
504 kr/ mån

Dokument

Dokument

  • pdf Ladda ner som PDF

Planritning

Vi hjälper dig att finna det du söker

Få de senaste objekten som matchar dina önskemål i din mailkorg innan de når marknaden. Anmäl dig till wredes spekulantregister och ange din sökning. Vi matchar alla objekt.

Att sälja underhand

En del av våra kunder föredrar en försäljning där man inte visar upp sitt hem helt publikt. Här ses ett urval av våra hem som Wrede säljer underhand. De visas endast på vår hemsida med begränsad information och syns inte på Hemnet. Vi har även flertalet villor, våningar samt lant-& sjöställen till salu som inte visas här. Söker ni ett exceptionellt hem utöver det vanliga? Vänligen kontakta oss på info@wrede.se så berättar vi mer om vårt underhandsutbud.

SPEKULANTREGISTER

Om du vill göra en intresseanmälan för olika typer av objekt (våningar, villor, lant & sjöställen, skåne & gotland) måste du anmäla dig för varje objektstyp.

Wredes nyhetsbrev

Varje vecka får du ta del av Wredes senaste objekt som ännu inte nått den öppna marknaden. Här läser du om de mest extravaganta hemmen, blir uppdaterad om de våra underhandsförsäljningar och får ta del av inbjudningar till kommande exklusiva event hos Wrede.
Söker du ny bostad? Anmäl dig till Wredes spekulantregister