Mer info

Övernattningslägenhet i city

Lästmakargatan 18, 7 tr – City Norrmalm

Boarea 58 kvm Rum | Våning 2 rok | 7
Pris Såld Avgift 3 487 kr

Välkommen till denna fräscha och nyrenoverade tvåa med högt och tyst läge i centrala Stockholm endast ett stenkast från Stureplan. Utmärkt övernattningslägenhet mitt i city eller för uthyrning i andra hand som tillåts av bostadsrättsföreningen.

Bostaden är funktionell och elegant och ligger på sjunde våningen med en rejäl balkong som har utsikt över takåsarna. De stora fönsterpartierna i väster och öster i kombination med den öppna planlösningen mellan kök och vardagsrum ger lägenheten en härlig rymd och ett underbart ljus. Lägenheten har genomgående vita väggar och golv i ljus ask, en stilren interiör och smakfulla detaljer som ger bostaden en modern och tidlös känsla. Badrummet är nyrenoverat och samtliga garderober nyligen platsbyggda. I entrén finns även en liten tvättstuga smart placerad i den ena garderoben. Hela lägenheten är i mycket bra skick och kan tillträdas omgående.

Bilder

Beskrivning

Interiör

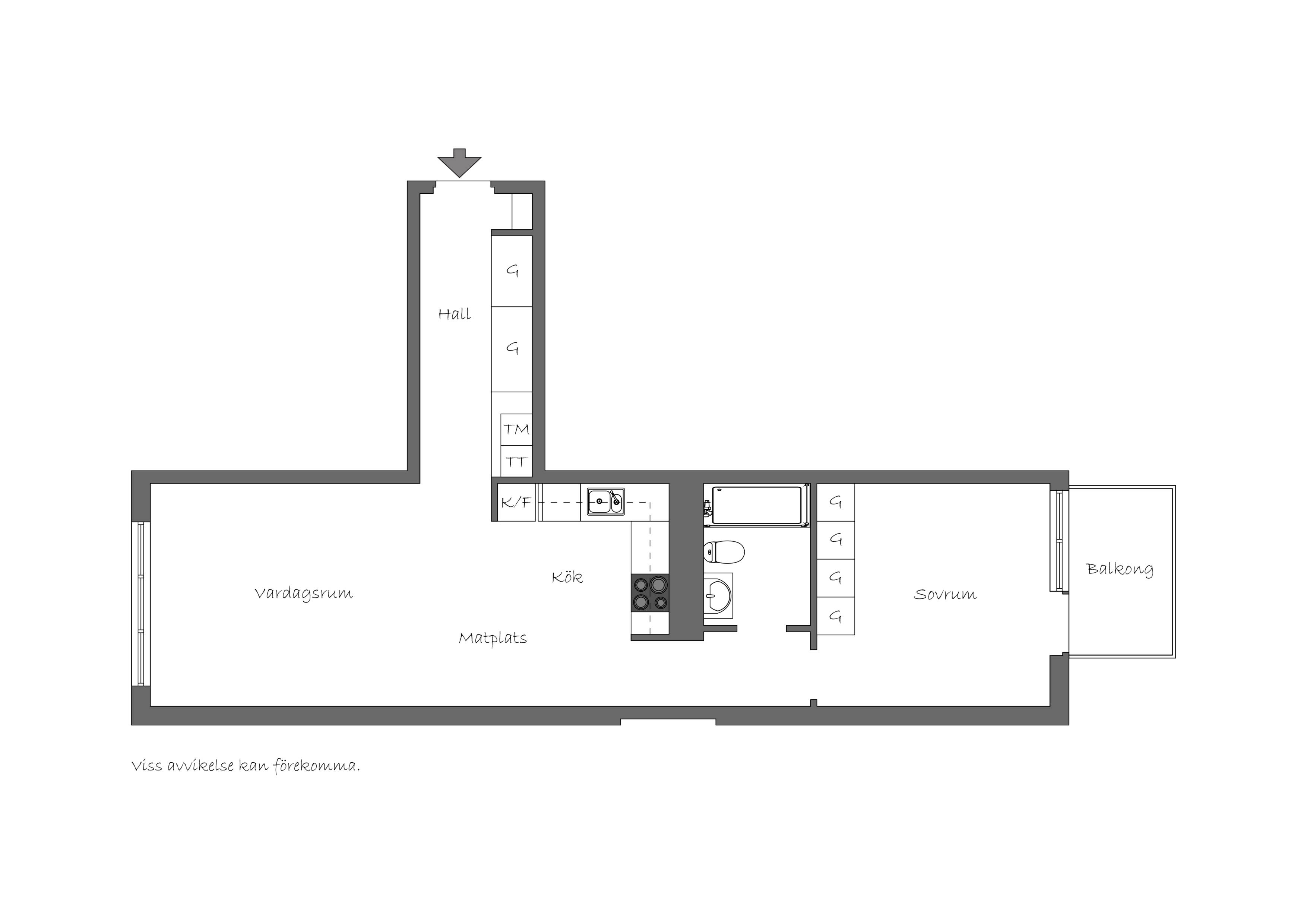
HALL
Inbjudande hall med exklusiv platsbyggd avhängning ovan sittbänk i Ternsjöläder. I entrédelen finns generöst med förvaring i den platsbyggda garderobsväggen som även innehåller en tvättstuga med tvättmaskin och torktumlare från Miele.

KÖK
Fullt utrustat kök med gott om förvaring och arbetsytor. Vita köksluckor, ljus arbetsbänk i stenkomposit. Induktionshäll, varmluftsugn, köksfläkt, inbyggd espressomaskin från Miele och inbyggd diskmaskin.

SÄLLSKAPSRUM
Rymligt sällskapsrum med plats för både soffa, soffbord, TV-bord, matbord. Generöst fönsterparti mot Lästmakargatan och takåsar.

SOVRUM
Stort sovrum med plats för dubbelsäng och förvaring i platsbyggd garderobsvägg med vita dörrar, en med lådor och en annan del fullhöjdsgarderob. Inbyggd belysning i gardinskenorna.

BADRUM
Helkaklat mycket lyxigt och nyrenoverat badrum med hotellkänsla i Carraramarmor. Exklusiv dusch från Vola bakom glasväggar, förvaring i handfatskommod, vägghängd toalett. Underliggande golvvärme. Handdukstork.

Till lägenheten hör nyttjanderätten till ett källarförråd.

Föreningen

Brf Lästmakarpalatset är en äkta bostadsrättsförening som äger marken och består av 43 lägenheter med varierande storlek. I entréplan finns en butikslokal på 72 kvm som är uthyrd. Föreningen bildades och registrerades 2010-10-12.

Stabil och välskött förening med god ekonomi. Styrelsen har gjort en utredning med anledning av risker kopplade till föreningens skattemässiga status som äkta förening. Med stöd av utredningen beslutas att andelen okvalificerad yta max får uppgå till 30 procent av av summan av föreningens totala hyresvärden, då den lagstadgade gränsen går vid 40 procent ansåg styrelsen att de därmed skapat sig en säkerhetsmarginal. Ingen avgiftsförändring planerade.  

GENOMFÖRDA RENOVERINGAR:
2020 Nytt inpasseringssystem
2018/2019 Radonmätning
2018 OVK
2011 Fastigheten uppfördes.  

GEMENSAMMA UTRYMMEN: Innergård    

KABEL-TV OCH BREDBAND: Föreningen har under hösten uppgraderat bredbands- och tv-avtalet med Bahnhof. (obligatorisk tilläggsavgift på 215 kr) Det nya avtalet innebär höjd hastighet från 100 mbit/s till 1000 mbit/s samt att Sappa blir ny leverantör av IP-tv. Föreningen tillhandahåller ett basutbud av tv-kanaler. Tilläggskanaler kan tecknas separat hos Sappa. TV-boxar har delats ut till samtliga lägenheter.  

ÖVRIGT: Föreningen tillåter om möjligt juridisk person. En bostadsrättshavare får upplåta sin lägenhet i andra hand till annan för självständigt brukande utan begränsning i tid och utan specifika skäl. Bostadsrättsinnehavaren skall dock alltid skriftligen informera styrelsen om andrahandsuthyrningen.
Överlåtelseavgift tas ut av köparen på 2.5 % av pris av prisbasbelopp
Parkering: Boendeparkering är det som tillämpas. Mer information finns hos Stockholms stad.

Fakta

Fakta

Upplåtelseform
Bostadsrätt - Lägenhet
Andel i föreningen
2.44168 %
Andelstal avgift
2.45142 %
Lägenhetsnummer
0702
Ingår i avgiften
Värme, Vatten, Bredband, Kabeltv
Våningsplan
7
Hiss
Ja
Förråd
Lägenhetsinnehavaren disponerar Källarförråd
Förening
Brf Lästmakarpalatset
Byggnadsår
2011
Bostadens nettoskuldsättning
210 251 kr
Uppgifter från ÅR 2023

Dokument

Dokument

  • pdf Ladda ner som PDF

Planritning

Vi hjälper dig att finna det du söker

Få de senaste objekten som matchar dina önskemål i din mailkorg innan de når marknaden. Anmäl dig till wredes spekulantregister och ange din sökning. Vi matchar alla objekt.

Att sälja underhand

En del av våra kunder föredrar en försäljning där man inte visar upp sitt hem helt publikt. Här ses ett urval av våra hem som Wrede säljer underhand. De visas endast på vår hemsida med begränsad information och syns inte på Hemnet. Vi har även flertalet villor, våningar samt lant-& sjöställen till salu som inte visas här. Söker ni ett exceptionellt hem utöver det vanliga? Vänligen kontakta oss på info@wrede.se så berättar vi mer om vårt underhandsutbud.

SPEKULANTREGISTER

Om du vill göra en intresseanmälan för olika typer av objekt (våningar, villor, lant & sjöställen, skåne & gotland) måste du anmäla dig för varje objektstyp.

Wredes nyhetsbrev

Varje vecka får du ta del av Wredes senaste objekt som ännu inte nått den öppna marknaden. Här läser du om de mest extravaganta hemmen, blir uppdaterad om de våra underhandsförsäljningar och får ta del av inbjudningar till kommande exklusiva event hos Wrede.
Söker du ny bostad? Anmäl dig till Wredes spekulantregister