Mer info

Magnifik vindsvåning i miniformat

Pilgatan 19 C – Kungsholmen

Boarea 33 kvm Rum | Våning 2 rok | 5
Pris 4 950 000 kr / bud Avgift 1 650 kr

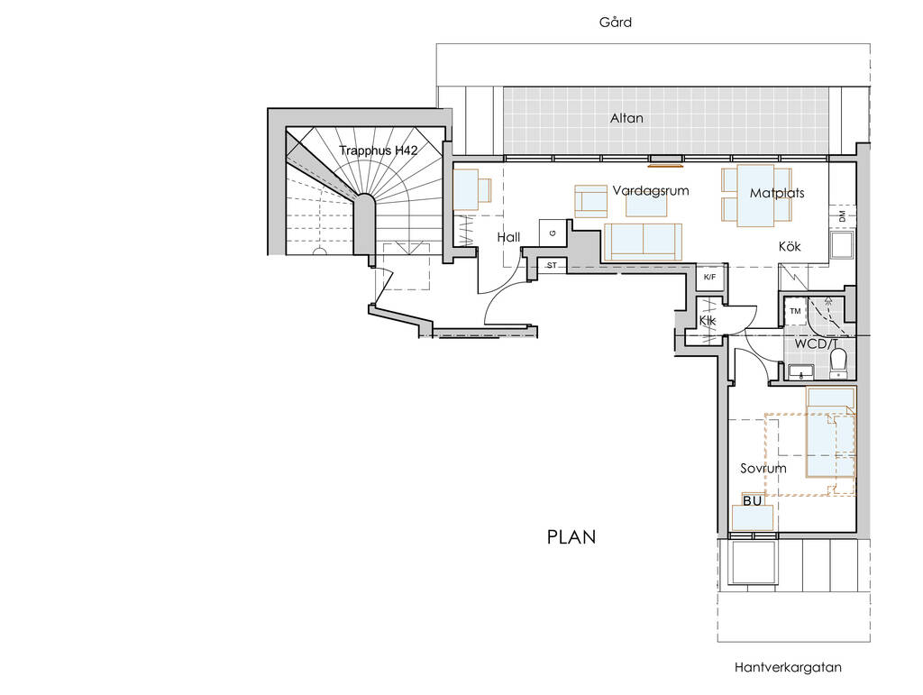
Lyxig, ljus och nybyggd vindsvåning om ca 36 kvm total golvyta. Taklyft och glasparti om 9 m ut till terrass om ca 14 kvm. Smart och supereffektivt planerad. Sällskapsdel, matplats, välutrustat kök, samt en liten arbetshörna. Sovrum med fönsterkupa och platsbyggda garderober. Stilrent badrum med takdusch och tvättmaskin.

Bilder

Beskrivning

Föreningen

Brf Morellpilen grundades 2015. Föreningen tillträdde fastigheten i juni 2016. Föreningen består av tre fastigheter; Morellträdet 6, 12 och 13 med adress Hantverkargatan 42-46 och Pilgatan 19 A-C. Byggåret är 1884-86 och ombyggnadsår 1971-72. Föreningen har idag 54 lägenheter med bostadsrätt och 18 med hyresrätt samt 12 lokaler med hyresrätt. Föreningen beräknar att det tillkommer ytterligare 11 st bostadsrätter i samband med konvertering av vindsytor och lokaler.

 

Förråd i källaren.

Tvättstuga i källaren.

Kabel-tv/bredband ComHem och Bredband 2 (fiber)

Överlåtelseavgift 1108 kr betalas av köparen. Pantsättningsavgift 443 kr.

 

Genomförda renoveringar:

- Värmeundercentral 2001

- Elstigare 1972

 

Planerade renoveringar:

- Entréer, trapphus 2016-17

- Stambyte inom 2-3 år

- Fönster inom 2-3 år

Pilgatan 19

Dokument

Dokument

Planritning

Vi hjälper dig att finna det du söker

Få de senaste objekten som matchar dina önskemål i din mailkorg innan de når marknaden. Anmäl dig till wredes spekulantregister och ange din sökning. Vi matchar alla objekt.

Att sälja underhand

En del av våra kunder föredrar en försäljning där man inte visar upp sitt hem helt publikt. Här ses ett urval av våra hem som Wrede säljer underhand. De visas endast på vår hemsida med begränsad information och syns inte på Hemnet. Vi har även flertalet villor, våningar samt lant-& sjöställen till salu som inte visas här. Söker ni ett exceptionellt hem utöver det vanliga? Vänligen kontakta oss på info@wrede.se så berättar vi mer om vårt underhandsutbud.

SPEKULANTREGISTER

Om du vill göra en intresseanmälan för olika typer av objekt (våningar, villor, lant & sjöställen, skåne & gotland) måste du anmäla dig för varje objektstyp.

Wredes nyhetsbrev

Varje vecka får du ta del av Wredes senaste objekt som ännu inte nått den öppna marknaden. Här läser du om de mest extravaganta hemmen, blir uppdaterad om de våra underhandsförsäljningar och får ta del av inbjudningar till kommande exklusiva event hos Wrede.
Söker du ny bostad? Anmäl dig till Wredes spekulantregister