Toppskick i Fältöversten

Valhallavägen 150 B - Östermalm, Stockholm

Boarea
94 kvm
Rum | Våning
4 rok | 3
Pris
Såld
Avgift
3 646 kr / mån

Totalrenoverad 4:a om 94 kvm fördelad på kök, matplats och sällskapsdel i öppen planlösning med stor och mycket solig balkong om ca 11 kvm längs hela ytterväggen. Tre bra sovrum, walk-in-closet samt ett stort badrum med både badkar och dusch. Genomgående lägenhet, med generöst ljusinsläpp i två väderstreck, sober färgskala, välplanerade förvaringslösningar och exklusiva materialval. Brf Fältöversten är en av Sveriges största bostadsrättsföreningar och är skuldfri. Garageplats finns genom porten bredvid med hiss rakt ner.

Bilder
Beskrivning

Brf Fältöversten

Bostadsrättsföreningen Fältöversten bildades 1994 och är en av Sveriges största bostadsrättsföreningar belägen på Östermalm i Stockholm. Föreningen har inga lån och är således skuldfri. 

Bostadsrättsföreningen Fältöversten förvärvade den tredimensionella fastigheten Fältöversten 8 som en urholkning av Fältöversten 7 av Boultbee 2008.

På fastigheten finns 5 flerbostadshus med 6-7 våningsplan. Fastigheten är uppförd 1973. Bostadsarean uppgår till 38 099 kvm och lokalarean till 1 539 kvm.

Brf Fältöversten är en äkta bostadsrättsförening.

Utfört underhåll:

Bjälklagets tätskikt renoverades 2006, genom att hela tätskiktet byttes ut.

Samtliga 28 hissar är renoverade 2003-2006.

Yttre skalskydd med tillhörande låstaggsystem, nybyggnation 2010/11.

Nya frånluftsfläktar 2010/11.

Utbyte av rulltrappor uppgång Karlaplan 2012, Valhallavägen 2013

Renovering fönsterkarmar och ommålning av fönster/balkonger sydsidan 2013.

Nya tätningslister samtliga fönster 2013

Nya kodlås samtliga portar 2013

Besiktning av samtliga yttertak 2013

Reparation av samtliga yttertak 2014-2016

Isolering av yttertak 2014/15

Stamspolning 2017-2018

Allmänt

Tvättstuga finns och är belägen i garageplanet. Hiss 31 vid uppgång Valhallavägen 148A leder till tvättstugan.

Två bredbandsnät finns indragna i fastigheterna. För abonnemang kontakta Com Hem eller Telia.

I Fältöversten 8 finns ett garage där platser i mån av tillgång kan hyras. Garaget omfattar 290 platser. Garaget administreras av Q-Park. 

Kostnad garageplats: ca  3 300 kr/månad. (Beroende på form)

Cyklar förvaras i cykelställ på gården. Det finns cykelställ vid varje port. Vinterförvaring finns fn inte inom föreningen. Barnvagnsrum finns i ett flertal portar och delas med samtliga inom föreningen.

En gästlägenhet för uthyrning till medlemmar och hyresgäster finns på Karlaplan 15C. Lägenheten kan hyras för max 4 dygn åt gången. Hyran är för närvarande 500 kronor per dygn.

Rumsbeskrivning

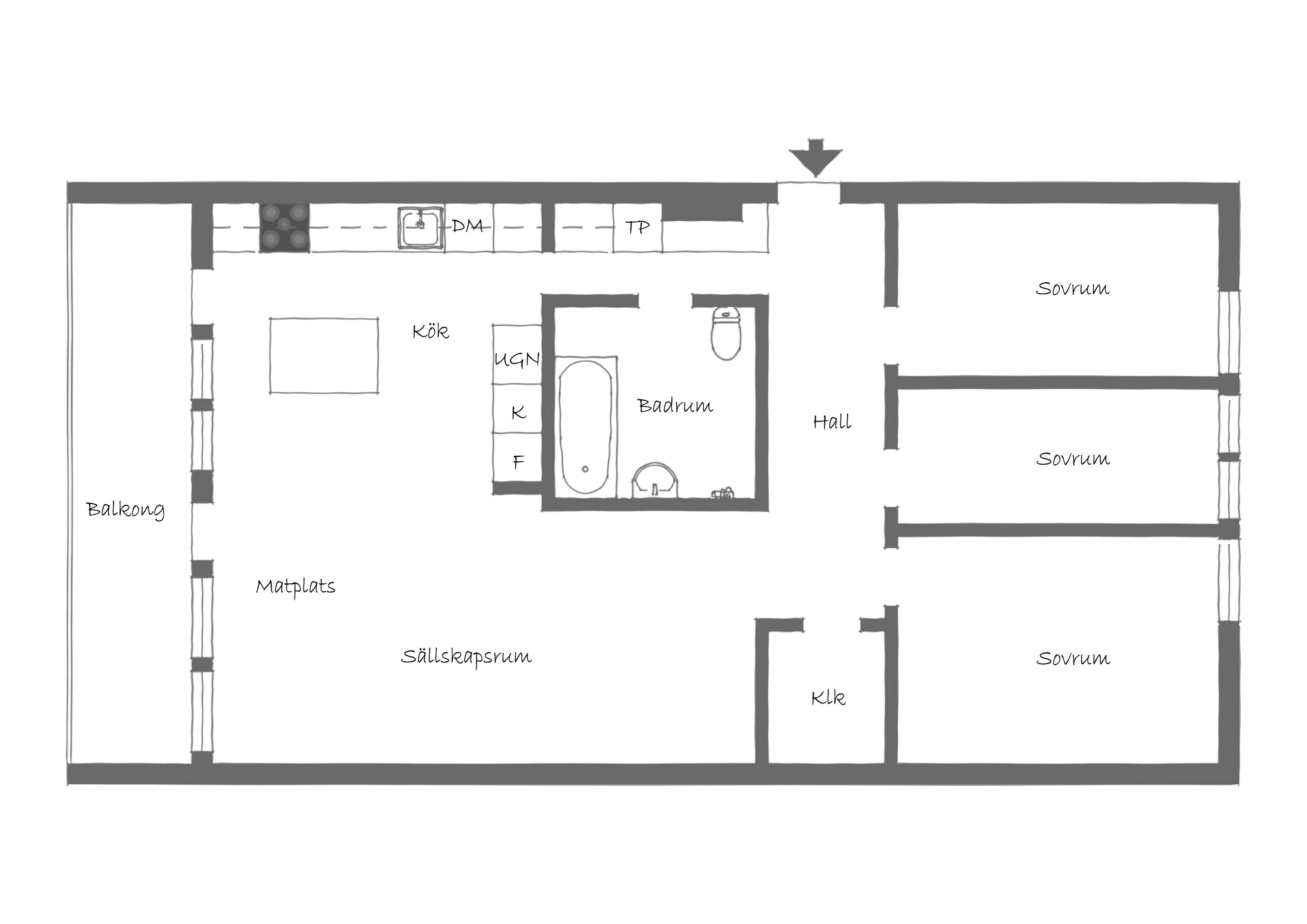
Generös hall med säkerhetsdörr och plats för avhängning. Från hallen, genom serveringsgång med förvaringsskåp och tvättpelare (Miele) öppnar det stilrena och smakfullt inredda köket upp med härligt ljusinsläpp från de stora fönstren längs hela ytterväggen. Två dörrar leder ut till den generösa och mycket soliga balkongen om ca 11 kvm mot gården och tysta Bältgatan i väst.

Det välutrustade köket är specialbeställt från Asplund med generösa bänkytor av Jura-kalksten. Helintegrerade vitvaror från Gaggenau såsom kyl, frys, diskmaskin, 90 cm bred induktionshäll, ugn samt en vattenansluten ång-ugn. Köksö med eluttag samt plats för upp till barstolar. I öppen planlösning med köket finns en spatiös matsalsdel samt sällskapsdel. 

Tre bra sovrum i fil, lugnt och tyst belägna mot gården på taket ovan Fältöverstens köpcentrum. Intill master-bedroom finns även en stor och praktiskt inredd klädkammare.

Det exklusiva familjebadrummet är helkaklat i ljus-beige kalksten på såväl väggar som golv. El-golvvärme. Inkaklat badkar (Villroy & Bosch), separat dusch, vägghängd wc samt brett handfat på kommod med förvaringslådor. Samtliga kranar från Vola. Intill badkaret finns el framdraget för installation av handdukstork. 

Denna oerhört smakfullt renoverade lägenhet har genomgående vitpigmenterad fiskbensparkett i ek och samtliga fönster har måttbeställda persienner, rullgardiner och gardiner.

Fakta
Upplåtelseform
Lägenhet - Bostadsrätt
Andel i föreningen
0.24300 %
Lägenhetsnummer
258
Ingår i avgiften
VA, kabeltv, bredband, telia TV
Våningsplan
3
Hiss
Ja
Förråd
Lägenhetsinnehavaren disponerar Ja, utanför lägenhetsdörren
Förening
Brf Fältöversten
Byggnadsår
1972
Energiprestanda
150 kWh/Kvm och år

Driftkostnad

El
600 kr/mån
Driftkostnader totalt
600 kr/mån
Planritning
Planritning

Visning

Kontakta ansvarig mäklare för visning.

Intresseanmälan

Fyll i formuläret nedan för att anmäla ditt intresse.





    Kontakt

    Fler hem till salu

    Vi hjälper dig att finna det du söker

    Få de senaste objekten som matchar dina önskemål i din mailkorg innan de når marknaden. Anmäl dig till wredes spekulantregister och ange din sökning. Vi matchar alla objekt.

    Att sälja underhand

    En del av våra kunder föredrar en försäljning där man inte visar upp sitt hem helt publikt. Här ses ett urval av våra hem som Wrede säljer underhand. De visas endast på vår hemsida med begränsad information och syns inte på Hemnet. Vi har även flertalet villor, våningar samt lant-& sjöställen till salu som inte visas här. Söker ni ett exceptionellt hem utöver det vanliga? Vänligen kontakta oss på info@wrede.se så berättar vi mer om vårt underhandsutbud.

    SPEKULANTREGISTER

    Om du vill göra en intresseanmälan för olika typer av objekt (våningar, villor, lant & sjöställen, skåne & gotland) måste du anmäla dig för varje objektstyp.

    Wredes nyhetsbrev

    Varje vecka får du ta del av Wredes senaste objekt som ännu inte nått den öppna marknaden. Här läser du om de mest extravaganta hemmen, blir uppdaterad om de våra underhandsförsäljningar och får ta del av inbjudningar till kommande exklusiva event hos Wrede.