Stilfull funkisklassiker invid Tessinparken

Valhallavägen 155, 4TR - Östermalm, Stockholm

Boarea
104 kvm
Rum | Våning
4 rok | 4 av 7
Pris
Såld
Avgift
4 060 kr / mån

Stilfull funkisklassiker med balkong och öppen spis. Storslagna ljusinsläpp från två väderstreck. Milsvid utsikt över trädtopparna från den skyddade balkongen i söder. Välplanerad med tre bra sovrum och gott om diskret förvaring. Flertalet vackra originaldetaljer såsom gedigna fönsterbleck i kolmårdsmarmor och fiskbensparkett. Ett hem för den med högt ställda krav. Omedelbar närhet till det bästa Östermalm har att erbjuda i form av restauranger, service och kommunikationer invid de grönskande omgivningarna runt Tessinparken och Karlaplan. Mycket solid förening med goda intäkter och gemensam takterrass. Våningen har både vinds- och källarförråd. Varmt välkomna på visning!

Bilder
Beskrivning

Förening

Fastigheten Högvakten 7 uppfördes 1932 av välrenommerade arkitekten Waldemar Conradsson, byggnaden med sin typiska funktionalistisk karaktär är av särskilt kulturhistoriskt värde. Brf Högvakten är en äkta bostadsrättsförening som bildades 1998 och förvärvade samtidigt fastigheten. Föreningen upplåter 28 lägenheter med bostadsrätt samt innehar 1 hyresrätt samt 5 lokaler i bottenplan som ger goda och stabila intäkter. Föreningen äger marken. Solid förening med låg avgift och skuldsättning per kvadratmeter. Fastigheten är i mycket gott skick och det finns en underhållsplan som sträcker sig ca 20 år framåt.

Till lägenheten disponeras både ett vinds- och källarförråd. I avgiften ingår värme och vatten. Kabel-TV levereras via Tele2 och fiber finns indraget i huset, bredband levereras av Ownit. Föreningens medlemmar har tillgång till tvättstuga i källarplan, samlingslokal, cykelställ på gården, barnvagnsrum och en takterrass.

Överlåtelseavgift tas ut om 2,5% av årets prisbasbelopp samt pantsättningsavgift om 1% av årets basbelopp.

Renoveringar i urval

Utförda renoveringar och underhållsarbeten i urval;

1996 - Fasadputs samt omläggning av tak

2000 - Balkongrenovering, byte av elstigar

2001 - Byte av VA-stammar

2002 - Förstärkt brandskydd, fönsterrenovering, nyinstallation hiss och tätning av rökgaskanaler

2003 - Renovering av trapphus och källarrenovering

2012/13 - Fönsterrenovering

2013 - Stamspolning och byte av hisswire 

2015 - OVK

2016 - Gårdsrenovering

2017 - Fasad- och balkongrenovering

2018 - Stamspolning

2019 - Fönstermålning, fönsterrenovering pl 7, underhållsplan fastställd, energideklaration genomförd, renovering restaurangkök

2020 - Nya samlingsledningar avlopp, stamspolning och infodring av stående stam, installation av filter och avgasanläggning samt ny cirkulationspump i värmesystemet, utbyte av läckande element, OVK

2021- Utbyte av stamventiler på värmestammar, åtgärdat fuktskador hos kemtvätten

2022 - Installation av säkerhetsdörrar

2023- Förbättring/måleri av huvudentré

2024 - Pågående relining av vissa avloppsstammar i fastigheten

Interiörbeskrivning

HALL
Trevlig hall med goda avhängningsmöjligheter och separat gästtoalett.

INRE HALL
Platsbyggd bokhylla och vackra pardörrar med spegelglas.

VARDAGSRUM
Luftigt vardagsrum med solig balkong och välfungerande öppen spis.

MASTER BEDROOM
Rymligt sovrum med flertalet platsbyggda garderober.

Sovrum 1
Sovrum med gott om plats för separat garderob.

Sovrum 2 / Arbetsrum
Utmärkt sovrum eller arbetsrum.

BADRUM
Fräscht kaklat badrum med dusch och tvättpelare.

KÖK
Sobert kök från 2019, ny induktionshäll från 2024. Välutrustat med kylskåp, frys, ugn och diskmaskin. Gott om plats för större matbord. Perfekt för middagsbjudningar.

 

 

Fakta
Upplåtelseform
Lägenhet - Bostadsrätt
Andel i föreningen
Array
Andelstal avgift
Array
Lägenhetsnummer
00016
Ingår i avgiften
Värme, Vatten
Våningsplan
4 av 7
Hiss
Ja
Förråd
Lägenhetsinnehavaren disponerar Ja
Förening
BRF Högvakten 7
Byggnadsår
1932
Energiprestanda
165 kWh/Kvm och år
Bostadens nettoskuldsättning
Kontrollerad hos förvaltare 2024-04-04
499 667 kr
Boarea
104 kvm

Driftkostnad

El
1 250 kr/mån
Försäkring
417 kr/mån
Driftkostnader totalt
1 667 kr/mån
Driftkostnad kommentar
Estimerade kostnader baserat på 2 pers.
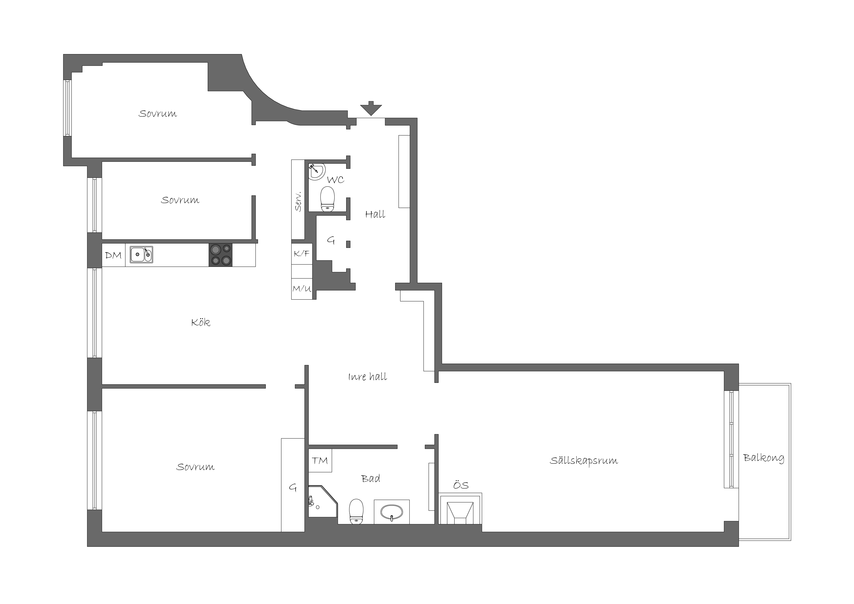
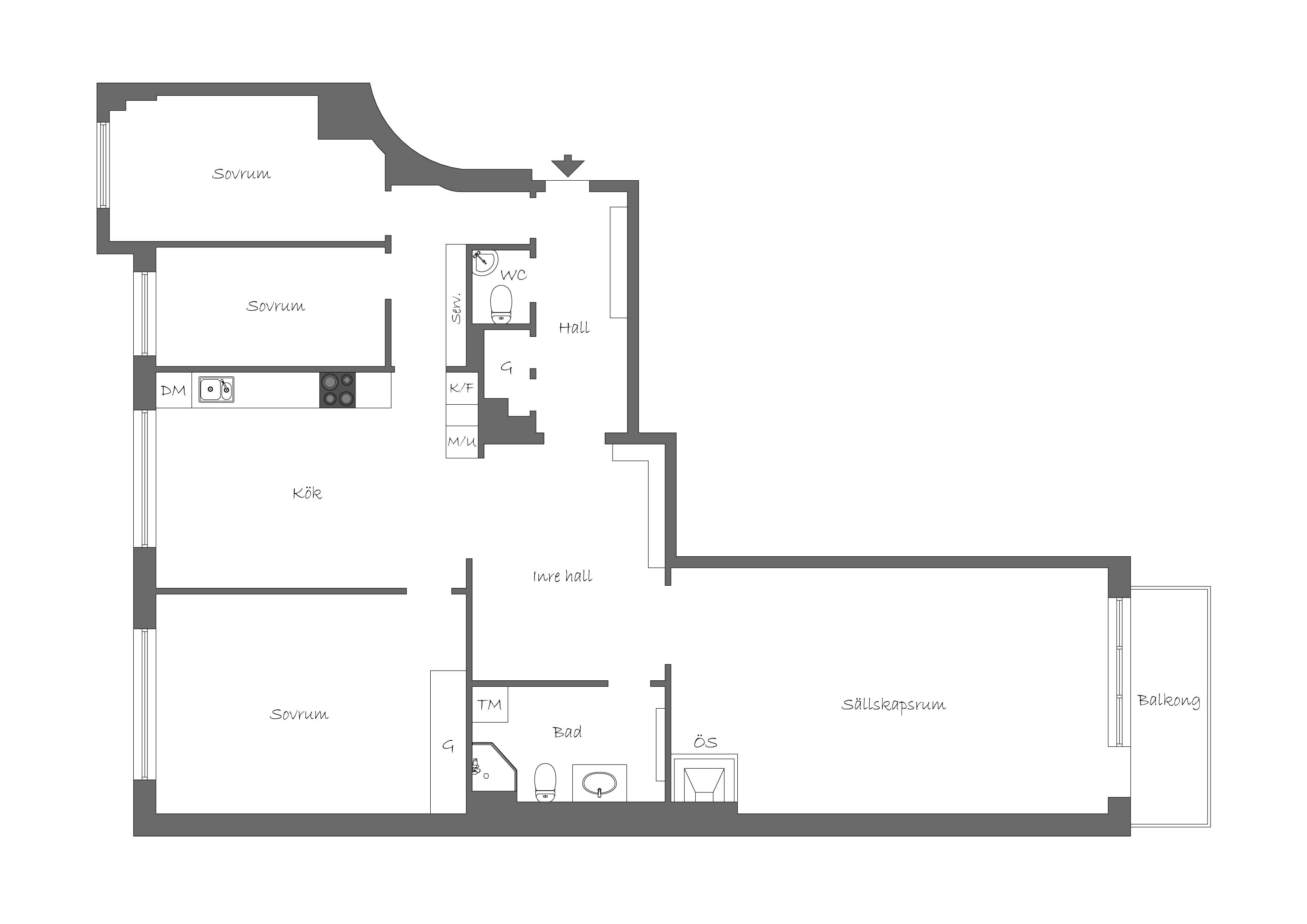
Planritning
Planritning

Visning

Kontakta ansvarig mäklare för visning.

Intresseanmälan

Fyll i formuläret nedan för att anmäla ditt intresse.





    Kontakt

    Fler hem till salu

    Vi hjälper dig att finna det du söker

    Få de senaste objekten som matchar dina önskemål i din mailkorg innan de når marknaden. Anmäl dig till wredes spekulantregister och ange din sökning. Vi matchar alla objekt.

    Att sälja underhand

    En del av våra kunder föredrar en försäljning där man inte visar upp sitt hem helt publikt. Här ses ett urval av våra hem som Wrede säljer underhand. De visas endast på vår hemsida med begränsad information och syns inte på Hemnet. Vi har även flertalet villor, våningar samt lant-& sjöställen till salu som inte visas här. Söker ni ett exceptionellt hem utöver det vanliga? Vänligen kontakta oss på info@wrede.se så berättar vi mer om vårt underhandsutbud.

    SPEKULANTREGISTER

    Om du vill göra en intresseanmälan för olika typer av objekt (våningar, villor, lant & sjöställen, skåne & gotland) måste du anmäla dig för varje objektstyp.

    Wredes nyhetsbrev

    Varje vecka får du ta del av Wredes senaste objekt som ännu inte nått den öppna marknaden. Här läser du om de mest extravaganta hemmen, blir uppdaterad om de våra underhandsförsäljningar och får ta del av inbjudningar till kommande exklusiva event hos Wrede.