Mer info

Gärsnäs Slott - Österlen

Gärsnäs slott 1 – Gärsnäs-Österlen

Boarea 740 kvm Rum 26 rok
Pris Såld Tomtarea 5 000 kvm

På vackra Österlen, inbäddat i kulturlandskapet invid Tommarpsån ligger Gärsnäs Slott, cirka 8 km från Simrishamn, 30 km från Ystad, 85 km från Malmö. Närhet till Sveriges finaste stränder, Gyllebosjön 2 km och Sandhammaren. Imponerande slottsbyggnad med putsad fasad bestående av 3 våningar med källarvalv från 1300-talet. Hela Slottet är fyllt av atmosfär, med vackra golv och djupa fönsternischer. Underbar park med vårdträd. Betesmark om 7 ha, tomt 5 000 kvm, totalt markareal ca 74 705 kvm. Vackra gråstenslängor och bokhållarlänga.

Bilder

Beskrivning

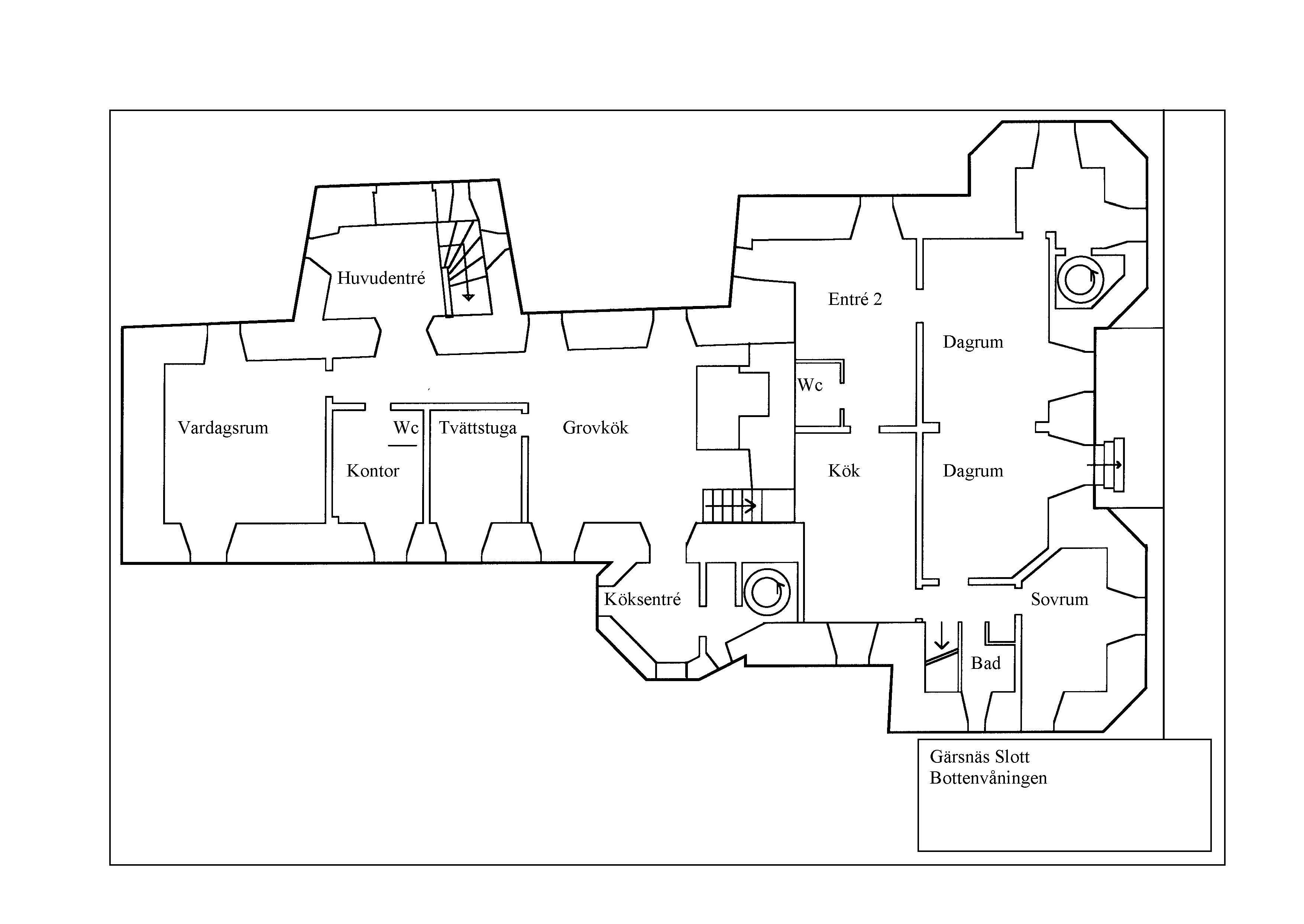
SLOTTSBYGGNADEN

Entré med kalkstensgolv och vitkalkade väggar. En halv trappa ner ligger vardagsrum, gårdskontor, bibliotek, gästwc och ett stort ljust lantkök med äldre ”sättugn” samt fransk gasspis. I anslutning äldre källarvalv (vinkällare). Köksentré i sep. tornrum samt egna serveringsgångar/ trappor på varje plan. Arbetskök med matplats. Biljardrum, stor sällskapsdel med utgång till park och uteplats. Vacker sällskapsvåning innefattande elegant salong med stor öppen spis (den s k Adlerstenska öppna spisen), matsal med plats för ca 20 personer. Kungarummet. Kabinett. Flertalet salonger, sovrum, badrum. Kakelugnar. Ytterligare gästrum på övre plan med bad i anslutning samt sep wc. Stort sällskapsrum med kakelugn.

ÖVRIGA BYGGNADER

Gråstenslänga med möjlighet till orangeri, pannrum och utställningslokal om 600 kvm. Bokhållarlänga/carport för 2 bilar och en stor verkstad/förråd om ca 170 kvm (ej vatten). Herrskapsstallet / Verkstad om 300 kvm (egen brunn).

HISTORIK

Gärsnäs finns omtalat som gård i källor från 1300-talet. Gärsnäs är ett komplex av delvis senmedeltida byggnader och torn, men dess utseende är idag huvudsakligen präglat av en medeltidsromantisk ombyggnad från 1873.

När den danska drottningen beslöt att upphäva förbudet att befästa gårdar, påbörjade ett flertal godsägare att bygga borgar i Skåne. Anders Sinclair uppförde, vackert inbäddat i kulturlandskapet på Österlen, Gärsnäs Slott. Under 1640-talet beslöt den dåvarande ägaren, Falk Lykke att bygga till det ”fasta huset” med en bostadslänga och ett ståtligt torn. Resultatet blev ett mycket välbyggt hus med över metertjocka murar i kalksten. Interiören är ljus och vacker i allt från de vindlande torntrapporna till de kryssvälvda källarna. Den ståndsmässiga bostad Falk skapade när han, för materialet, rev hela byn inklusive kyrkan kulminerar i de två stora salarna på mittenplanet.

Det var här Jöran Adelersten slutade sina dagar när han ”bröt halsen af sigh” i ett mindre lyckat försök att avlägsna ett stekben som fastnat i halsen. Många trevliga supéer och middagar har dock fram till i våra dagar hållits här – Anders Sinclair höll fest för Kung Kristian, Carl von Linné skrev rent dagens anteckningar från sin Skånska resa och kanske satt Karl XII och Christian Albrecht von Grothusen och diskuterade krigets finanser före utresan till det långa kriget.

I huset blandas stilar från olika epoker. Av senrenässansen Gärsnäs återstår endast en spisomfattning i kalksten som nu är inmurad i torntrappan. På undanskymda platser som vindar och källare finns Barocken kvar med sina vackra lås och gångjärn, men kanske är spisen i Lykkes nya kök den bäst bevarade detaljen från denna epok.

Familjen Schönströms Sengustavianska renovering gör sig påmind i spisomfattningen i stora salen och i dörrblad och fönster. Ferdinand Mehldahls renovering, 1873, åt den Rosenkrantzka familjen, omfattade framförallt exteriören och tredje våningen.

Gärsnäs har dokumenterats i flera reportage, bla i Gods & Gårdar nr 1/99 & 5/02.

RENOVERINGAR

Uppvärmning: 2007 eller 2008 installerades nya pellets pannor. Dessa värmer upp mkt bra, nuvarande ägare har inte behövt använda oljan som tilläggs värme. Nya hydroforer 2009 samt 2012. Bra fördelning av värme även långt uppe i husets element. Nya expansionskärl 2013.
Fönstren är målade med linoljefärg, ca 80 % av de fönster som behövdes renoveras vidgjordes 2010/11.
Koppartaket är helt omlagt under 50-talet /-60-talet av tidigare ägare. Koppartaket med hög guldhalt i mycket bra skick enligt säljaren.

Servitut

Officialservitut VÄG, Förmån
1181-880 - 1, 1994-01-13

Officialservitut VATTENTÄKT, Last
1181-880 - 2, 1994-01-13

Officialservitut VÄG, Förmån
1181-318 - 1, 1987-08-21

Officialservitut VÄG, Last
1181-318 - 3, 1987-08-21

Officialservitut VÄG, Förmån
1181-318 - 2, 1987-08-21

MARKAREAL

Betesmark om 7 ha, tomt ca 5 000 kvm, totalt markareal 74 705 kvm enligt fastighetsregistret.

Fakta

Fakta

Upplåtelseform
Friköpt - Gård
Byggnadsår
1509 (Ursprungligen 1300-tal, 1640, tillbyggt 1873. Kontinuerligt renoverat)
Byggnadstyp
Slottsbyggnad
Uppvärmning
Pellets + el + oljepanna. Kakelugnar (ej fungerande), öppna spisar
Fönster
Enkla 1/2-glas kopplade
Fasad
Kalkputs
Tak
Koppartak omlagt ca år 1950
Bjälklag
Trä
Stomme
Kalksten/tegel
Vatten och avlopp
Enskilt vatten året om. Enskilt avlopp.
Ventilation
Självdrag
Taxeringsvärde byggnad
2 688 000 kr
Taxeringsvärde tomt
286 000 kr
Taxeringsvärde totalt
3 731 000 kr

Driftskostnad

Värme
4 442 kr/ mån
El
1 524 kr/ mån
Driftskostnader totalt
5 966 kr/ mån
Driftkostnad kommentar
Driftskostnaderna avser el samt pellets

Dokument

Dokument

Planritning

Vi hjälper dig att finna det du söker

Få de senaste objekten som matchar dina önskemål i din mailkorg innan de når marknaden. Anmäl dig till wredes spekulantregister och ange din sökning. Vi matchar alla objekt.

Att sälja underhand

En del av våra kunder föredrar en försäljning där man inte visar upp sitt hem helt publikt. Här ses ett urval av våra hem som Wrede säljer underhand. De visas endast på vår hemsida med begränsad information och syns inte på Hemnet. Vi har även flertalet villor, våningar samt lant-& sjöställen till salu som inte visas här. Söker ni ett exceptionellt hem utöver det vanliga? Vänligen kontakta oss på info@wrede.se så berättar vi mer om vårt underhandsutbud.

SPEKULANTREGISTER

Om du vill göra en intresseanmälan för olika typer av objekt (våningar, villor, lant & sjöställen, skåne & gotland) måste du anmäla dig för varje objektstyp.

Wredes nyhetsbrev

Varje vecka får du ta del av Wredes senaste objekt som ännu inte nått den öppna marknaden. Här läser du om de mest extravaganta hemmen, blir uppdaterad om de våra underhandsförsäljningar och får ta del av inbjudningar till kommande exklusiva event hos Wrede.
Söker du ny bostad? Anmäl dig till Wredes spekulantregister