Well-designed Suite

Gamla Stan, Stockholm

living area
142 square meters
Room | Floor
4-bedroom apartment | 1
Price
Price on request
Fee
11 185 SEK per month

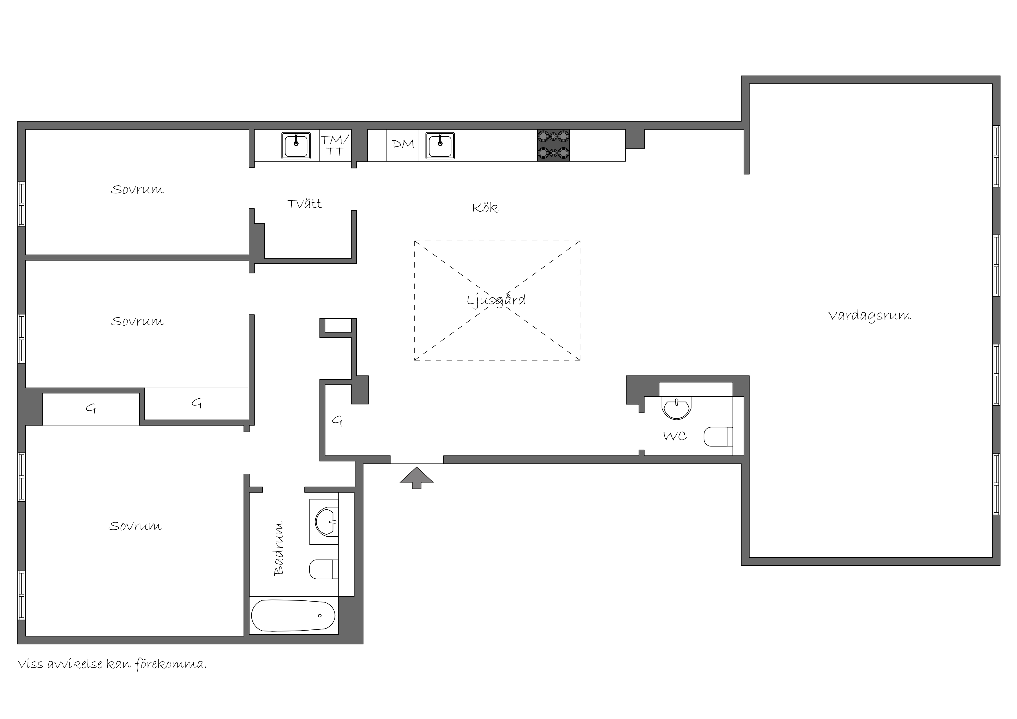
Invid Riddarfjärden i Gamla Stan återfinns denna välplanerade familjevåning. Våningen är en bostadsrätt men nyttjas idag som kontor. Genomgående bostad som präglas av fantastiskt ljusinsläpp samt vacker utsikt mot Mariaberget. Social och väl genomtänkt disposition med vardagsrum och kök i halvöppen planlösning samt elegant ljusgård som skapar en naturlig avgränsning. Lättmöblerad sällskapsdel med härligt ljusflöde genom fyra fönsterpartier som vetter mot sydväst. Välutrustat kök med generösa arbetsytor och all önskvärd maskinell utrustning. Tre välplanerade sovrum i privat sfär med angränsande badrum samt separat tvättrum. Ytterligare gäst-wc finns belägen invid hallen. Solid och välskött förening med låg belåning samt en gemensam takterrass om ca 70 square meters med bland annat spabad, grill och hänförande utsikt över Stockholms innerstad.

Images
Floor plan
Floor plan

viewing

Contact the responsible broker for viewing.

Expression of interest

Please fill out the form below to register your interest.





    Contact

    More homes for sale

    We help you find what you are looking for

    Get the latest properties that match your requirements in your inbox before they hit the market. Sign up to Wrede's buyer registry and enter your search criteria. We match all properties.

    Selling Off-market

    Some of our clients prefer to sell their homes without putting them on the open market. Here is a selection of homes that Wrede is selling off-market. They are only listed on our website with limited information and are not visible on Hemnet. We also have several villas, suites country and lakeside properties for sale that are not shown here. Are you looking for an exceptional home that is out of the ordinary? Please contact us at info@wrede.se and we will tell you more about our private listings.

    SPECULATOR REGISTER

    If you want to register your interest in different types of properties (Suites, villas, country & lakeside properties, Skåne & Gotland), you must register for each property type.

    Wrede's newsletter

    Every week, you will receive updates on Wrede's latest objekt have not yet reached the open market. Here you can read about the most extravagant homes, receive updates on our private sales, and receive invitations to upcoming exclusive events at Wrede.