Mer info

Insynsskyddat på bästa adress

Sindrevägen 8C – Djursholm

Boarea 296 kvm Rum 7 rok
Pris 26 000 000 kr / bud Tomtarea 2 012 kvm

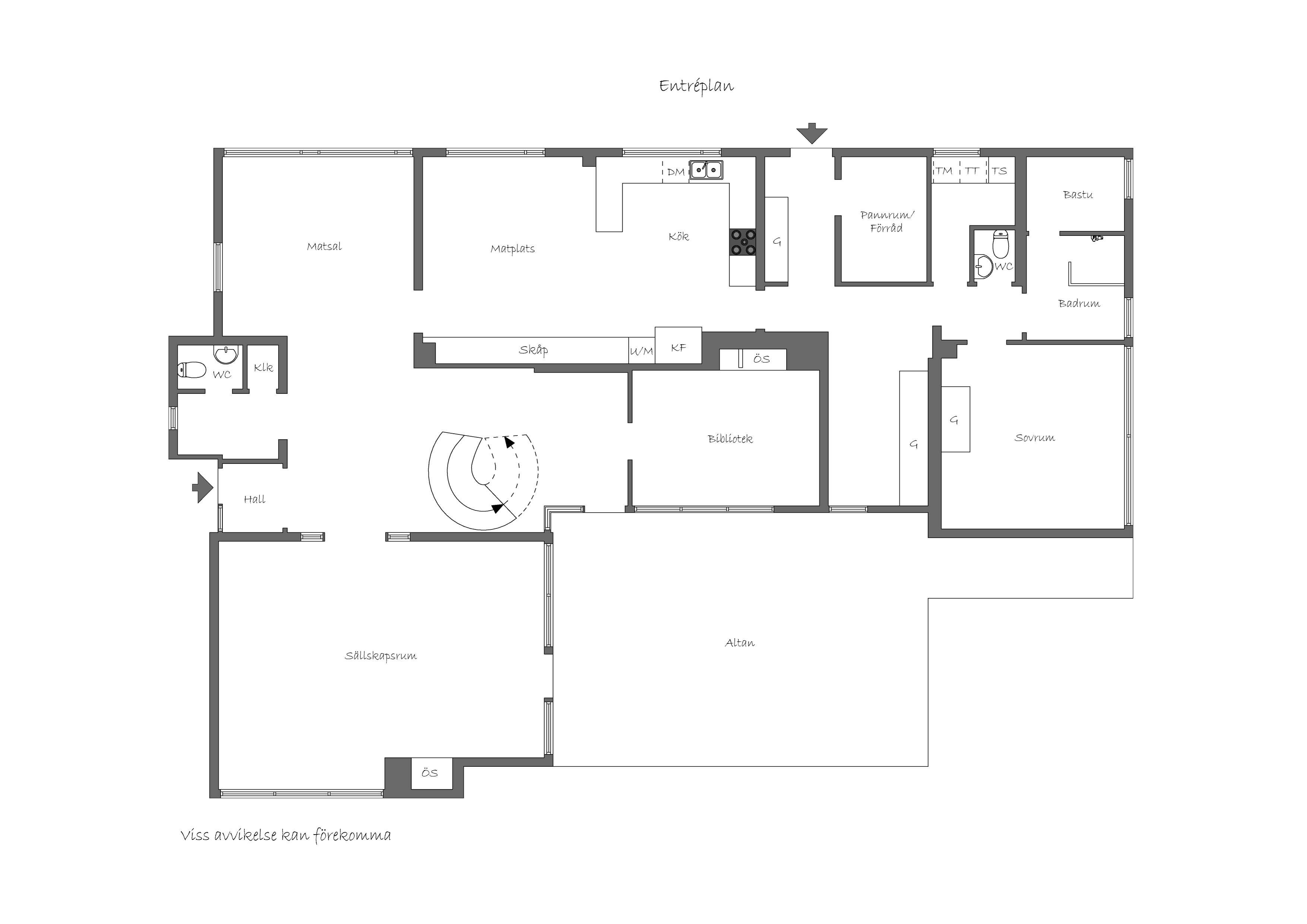
Med en södervänd tomt på mycket bra adress i Djursholm ligger denna ljusa och insynsskydddade villa, ritad av arkitekt Walter Teeling, med sin tilltalande planlösning som bjuder in till socialt umgänge både ute och inne åtskilt från den privata delen på övre plan. Med sin utmärkande 50-talsarkitektur och stora fönsterpartier ligger huset som en unik pärla på en platt och lättillgänglig tomt om drygt 2 000 kvm med garage för två bilar, laddstolpe, verktygsbod och en tomt som med fördel kan förädlas med en pool. Med en boarea om knappt 300 kvm som disponeras på ett behagligt och yteffektivt sätt utan kvadratmetrar som går till spillo. Fastigheten ligger i ett av Djursholms mest eftertraktade områden med närhet till Djursholms torg med dess breda och trevliga serviceutbud, välrenommerade skolor och förskolor, bra kommunikationer och gott om möjlighet till utomhusaktiviteter i form av grönområden, vatten och skogar.

Bilder

Beskrivning

Interiör

En stensatt gång leder från garaget fram till den lättillgängliga huvudentrén med kodlås med gott om plats för avhängning i form av ett separat kapprum med klädkammare och gästwc. En inre hall som utgör husets hjärta med utgång till altan och trädgård och som även öppnar upp till sällskapsdelar i form av sällskapsrum och matsal. Ett öppet och ljust sällskapsrum i form av ett hörnrum som flödar i ljus med sina generösa fönsterpartier i söder med en inmurad öppen spis och direkt utgång till den skyddade altanen. Altanen med plats för både loungemöbler och ett stort matbord i ett sydvästläge med infravärme, markiser och i nivå med den stora gräsmattan med en liten damm framför. Innanför altanen ligger ett bibliotek/arbetsrum med öppen spis och utsikt över trädgården. Matsalen ligger i direkt anslutning till det stora köket med plats för matbord för det stora sällskapet. Ett stort och rymligt familjekök med bardisk och plats för matbord för 8-10 personer. Ytterligare en entré med gott om avhängning som leder in till det separata sovrummet med badrum och bastu i anslutning. Här ligger även den separata tvättstugan och en hall med en hel garderobsvägg som även kan göras om till ytterligare ett sovrum.

Öppen och tidsenlig trappa leder upp till det övre våningsplanet med en trivsam och öppen sällskapsdel med stora fönster ut mot trädgården och med plats för soffgrupp och arbetsplats eller som ett lekrum för de yngre barnen. Idag disponeras den övre våningen med två större sovrum vara ett eller båda med enkelhet kan återställas till två, se alternativ planritning, så sammantaget möjlighet till fyra sovrum på övre plan alternativt tre sovrum och en walk in closet. 

Ett stort kök för den stora familjen disponerad med en bardisk och plats för ett större matbord. Mycket gott om förvaring i skåp/vitrinskåp längs med ena väggen, under- och överskåp och med stora insynsskyddade fönster ut mot trädgården. 

Badrum på entréplan med dusch i anslutning till bastun och separat wc med wc och handfat. 

Tvättstuga med tvättmaskin, torktumlare och torkskåp.

Badrum på övre plan med inkaklat badkar och handfat på modul, även här separat wc med wc och handfat. 

Gästwc i anslutning till entrén med wc och handfat. 

Garage med plats för två bilar om ca 35 kvm med uppfart framför med plats för fyra bilar och med en elladdare.

Övrigt

Indragen fiber i fastigheten.
Larm installerat.
Laddstolpe för elbil med lastbalanser för avlastning som prioriterar ner laddning av bilen när bergvärmepumpen behöver el.

Fakta

Fakta

Upplåtelseform
Friköpt - Småhus
Byggnadsår
1959 (Tillbyggt 1965)
Byggnadstyp
Tvåplanshus
Kommentar Yta
Terrass på övre plan om ca 38 kvm och en större altan på markplan.
Uppvärmning
Vattenburet system med bergvärme, elvärmeslingor i några rum
Energiprestanda
124 kWh/Kvm och år
Fönster
2-glas med kopplade bågar, blandade typer av isolerglas
Fasad
Tegel, träpanel, skivtäckt
Tak
Motfallstak med invändig avvattning klätt med takpapp
Bjälklag
Betong, trä
Stomme
Tegel/lättbetong
Grund
Krypgrund/grundsulor
Vatten och avlopp
Kommunalt vatten året om/Kommunalt avlopp.
Ventilation
Självdrag
Taxeringsvärde byggnad
7 000 000 kr
Taxeringsvärde tomt
13 000 000 kr
Taxeringsvärde totalt
20 000 000 kr

Driftskostnad

El
3 168 kr/ mån
Vatten/Avlopp
1 083 kr/ mån
Renhållning
600 kr/ mån
Försäkring
1 642 kr/ mån
Övrigt
499 kr/ mån
Driftskostnader totalt
6 992 kr/ mån
Driftkostnad kommentar
Angiven driftskostnad är beräknad enligt schablon med en årsförbrukning på 30 410 kWh. Övrigt är bredband, internet 100/100 Mbit/s kostar 499:- i månaden med Bredband2.

Dokument

Dokument

  • pdf Information inför bostadsöverlåtelse
  • pdf Energideklaration
  • pdf Radonmätning
  • pdf Överlåtelsebesiktning okt 2025

Planritning

Välkommen på visning

visning söndag, 9 november 2025
Kontakta mäklare för tid, välkommen!
Spara i min kalender

Vi hjälper dig att finna det du söker

Få de senaste objekten som matchar dina önskemål i din mailkorg innan de når marknaden. Anmäl dig till wredes spekulantregister och ange din sökning. Vi matchar alla objekt.

Att sälja underhand

En del av våra kunder föredrar en försäljning där man inte visar upp sitt hem helt publikt. Här ses ett urval av våra hem som Wrede säljer underhand. De visas endast på vår hemsida med begränsad information och syns inte på Hemnet. Vi har även flertalet villor, våningar samt lant-& sjöställen till salu som inte visas här. Söker ni ett exceptionellt hem utöver det vanliga? Vänligen kontakta oss på info@wrede.se så berättar vi mer om vårt underhandsutbud.

SPEKULANTREGISTER

Om du vill göra en intresseanmälan för olika typer av objekt (våningar, villor, lant & sjöställen, skåne & gotland) måste du anmäla dig för varje objektstyp.

Wredes nyhetsbrev

Varje vecka får du ta del av Wredes senaste objekt som ännu inte nått den öppna marknaden. Här läser du om de mest extravaganta hemmen, blir uppdaterad om de våra underhandsförsäljningar och får ta del av inbjudningar till kommande exklusiva event hos Wrede.
Söker du ny bostad? Anmäl dig till Wredes spekulantregister